Хайрцагнаас гарч сэтгэ: Агуулахаас оффис хүртэл

Бангладешийн Dehsar Works архитектурын компани агуулахын зориулалттай ашиглаж байсан байгууламжийг оффис болгон өөрчилжээ. Тус компани харилцаа холбооны Бангладешийн нийслэл Дака хотод байрлах The Blues Communications компанийн оффисын зураг төслийг хариуцан ажилласан байна. Dehsar Works  30-40 хүний багтаамжтай тус оффисын зураг төслийг хуучин агуулахыг сэргээн засварлаж хийжээ. The Blues Communications компани энэ ажлыг хайрцагнаас гарч сэтгэсэн, алсын хараатай, бүтээлч архитектур гэж үзэж байгаа аж. 







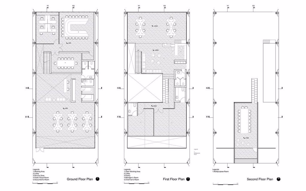
Оффис архитектур талаасаа олон янзын зориулалттай, хүний нүдэнд тусахуйц байхаар төлөвлөгджээ. Өөрөөр хэлбэл дотоод орон зайн хувьд уулзалт, хурал зөвлөгөөн гэх мэтээр өрөөнүүд нь өөр өөрийн хэв маягтай байхаар тохижуулжээ. Оффисын барилга нэгэн хэвийн, албаны маягтай бус хайрцагнаас гарч сэтгэсэнд уг барилгын давуу тал оршино. Мөн компанийн ажилчид заавал 9:00-5:00 цаг хүртэл ажиллах шаардлагагүй, үүнээс олон цагаар ч ажиллаж болохоор ажээ. 




Барилга угсралтын тухайд бэлэн хийцийн метал экзоскелет ашиглаж, дулаалгын зорилгоор поликарбонат хавтанг ашиглажээ. Түүнчлэн гадна, дотор талын дулаан алдалтыг багасгах зорилгоор давхар бүрхүүлтэй шилэн фасад хийжээ. Мөн төмөр бетонон нийлмэл хавтангаар шаллаж, бэлэн хийцийн модон хавтангаар гадар талыг нь хийсэн байна. Түүнчлэн төмөр бетон болон тоосгыг метал экзоскелетийг бэхлэх зорилгоор ашиглажээ.






Архитекторууд оффисын орон зайн чөлөөтэй байдлыг нь нэмэгдүүлэх тал дээр голчлон анхаарч, үйлчилгээний үр ашигтай менежемент, зардлыг бууруулах, засвар үйлчилгээг хялбарчлах зэрэг шаардлагыг харгалзан, дээврийн хөндийд нэмэлт талбай гаргажээ. Барилгын ажлын өртгийг багасгах, нүүрстөрөгчийг хадгалахын тулд төмөр суурин дээр бетон цутгалт хийсэн байна. Өндөр тааз, том тунгалаг шилэн фасад нь өдрийн цагаар илүү их байгалийн гэрлийг барилга руу оруулах ач холбогдолтой юм. 






Шөнийн цагаар оффис цагаан LED гэрлийн тусламжтай яг л аварга том гэрэлтүүлэгч мэт харагддаг ажээ. Энэхүү байгууламжийн гадна автомашины зогсоол,  машин болон явган хүний зам бий. Мөн олон төрлийн ногоон ургамал бүхий хүний харааг булаам цэцэрлэгжүүлэлтийг хийсэн байна. 

Төслийн тухай товч:

Архитектур: Dehsar Works

Талбай: 2.019 мкв

Гэрэл зургийг: Noufel Sharif Sojol

Үйлдвэрүүд:   AutoDesk, Saint-Gobain, ALM Steel, McNeel, Nasir Glass, ONLEAD, PMG, Shah Cement, Star Partex, Trimble Navigation

Удирдах архитектур: Rashed Hassan Chowdhury

Төслийн архитектур: Sayedil Ashrafin

Бүтцийн зөвлөх: Хабибур Рахман

Цахилгааны зөвлөх: Алинур Рахман

Сантехникийн зөвлөх: Камруззаман

СЭТГЭГДЭЛ БИЧИХ

АНХААРУУЛГА:
Уншигчдын бичсэн сэтгэгдэлд barilga.mn хариуцлага хүлээхгүй болно. Манай сайт ХХЗХ-ны журмын дагуу зүй зохисгүй зарим үг, хэллэгийг хязгаарласан тул та сэтгэгдэл бичихдээ бусдын эрх ашгийг хүндэтгэн үзнэ үү.

Холбоотой мэдээ