Үндсэн онцлог:
Хүчдэл-220V, 50Hz
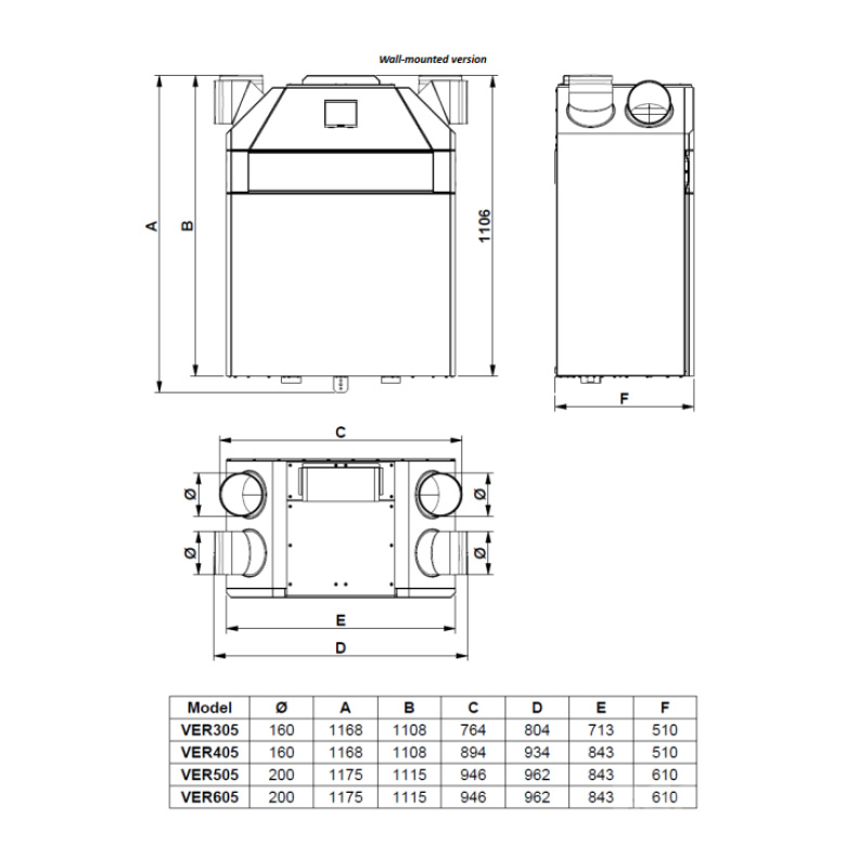
Агаарын зарцуулалт-313/430/508/605 м3/цаг
Суурилуулах байрлал – Хананд суурилуулна.
Дулаан солилцуур 95% хүртэл үр ашигтай
ISO стандартын дагуу M5 /ePM10, F7 / ePM1 шүүлтүүрээр тоноглогдсон
Ухаалаг утсанд зориулсан гар утасны програм – Android, iOS болон алсаас удирдах боломжтой
EC мотортой сэнс
Холболтын диаметр- 160/200 мм
Конденсат ус зайлуулах хоолойн диаметр- 32 мм
MODBUS RTU протоколоор алсаас удирдах боломжтой
