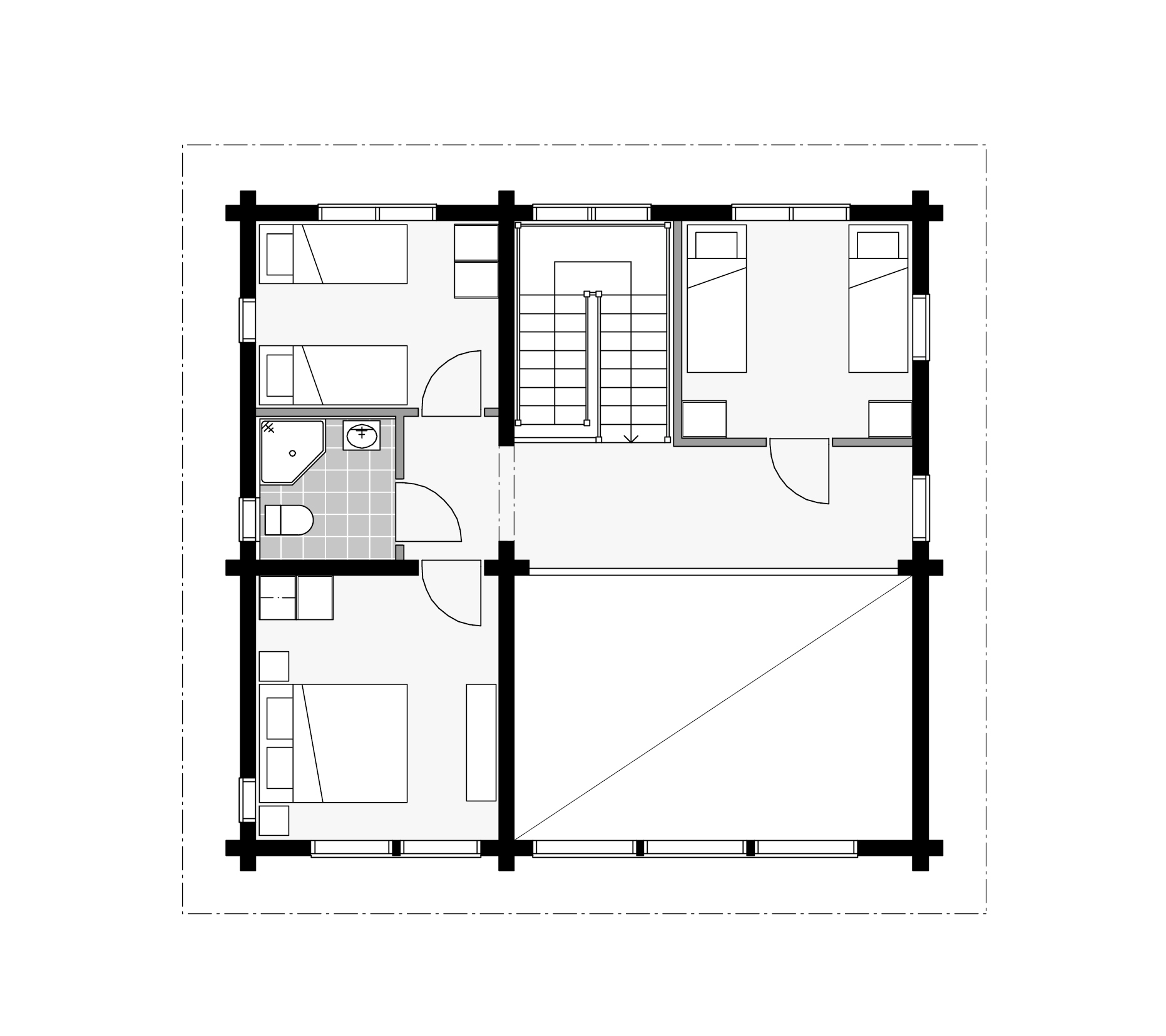
Давхарынтоо: 2
Ашигтай талбай: 158 м2
Нийт талбай: 234 м2
Унтлагын өрөөнийтоо: 4
Давуу талууд:
- Арктикийн нарс
- Чанарын бодлого
- Эрүүл амьдрал
- Барилгын дотор агаарын чанар
- Астма болон харшлын эсрэг
- Стрессийг бууруулдаг
- Хүссэн загвар, дизайн
- Эрчим хүчний хэмнэлттэй
- Галд тэсвэртэй
- Газар хөдлөлтөнд тэсвэртэй
- Байгальд ээлтэй (PEFC certified)
Борлуулалтын алба:
Холбоо барих: 77118848, 99155711
Имэйл: sales@progrex.mn
Вэб сайт: www.progrex.mn
Албан ёсны борлуулагч: Progrex
