Компани
Мэдээ
Бүтээгдэхүүн
Шинэ орон сууц
Нийтлэлчид
Үнэ ханш
Үл хөдлөх хөрөнгө
Номын сан
Шинээр нэмэх
Нэвтрэх
Бүгд
Компани
Мэдээ
Бүтээгдэхүүн
Шинэ орон сууц
Ажлын байр
Үйл явдал
Компани
Мэдээ
Бүтээгдэхүүн
Шинэ орон сууц
Ажлын байр
Үйл явдал
Үл хөдлөх хөрөнгө
Номын сан
Бизнес үүсгэх
Бүртгүүлэх
Нэвтрэх
Нүүр
Мэдээ
Мэдээ
Фото мэдээ
Хүний анхдагч орон гэр болох агуйгаас санаа авав
×
Алдаа мэдээлэх
Нүүр
Мэдээ
Нийтлэл
Хаус дизайн
Үнэ ханш
Тендер
Нийтлэлчид
Бусад
Хүний анхдагч орон гэр болох агуйгаас санаа авав
Баярмаа
2019-11-06
Алдаа мэдээлэх
4640
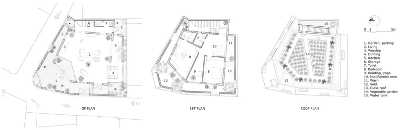
Тоосгон агуй мэт энэхүү байшин нь Вьетнамын Ханой хотын захын хороололд байрладаг. Байшин нь ямар нэгэн байдлаар тайвшрал өгөхүйц орон зайг бий болгодог хэмээн архитекторууд тайлбарлажээ.
Архитектур:
H and P архитектур
Байршил:
Дон Ан дүүрэг, Ханой хот, Вьетнам
Төсөл дууссан хугацаа:
2017.12сар
архтитектур
Холбоотой мэдээ
Ачааллаж байна ..