Компани
Мэдээ
Бүтээгдэхүүн
Шинэ орон сууц
Нийтлэлчид
Үнэ ханш
Үл хөдлөх хөрөнгө
Номын сан
Шинээр нэмэх
Нэвтрэх
Бүгд
Компани
Мэдээ
Бүтээгдэхүүн
Шинэ орон сууц
Ажлын байр
Үйл явдал
Компани
Мэдээ
Бүтээгдэхүүн
Шинэ орон сууц
Ажлын байр
Үйл явдал
Үл хөдлөх хөрөнгө
Номын сан
Бизнес үүсгэх
Бүртгүүлэх
Нэвтрэх
Нүүр
Мэдээ
Мэдээ
Ийм шөнийн клубт хүн болгон татагдахгүй гэж үү...
×
Алдаа мэдээлэх
Нүүр
Мэдээ
Нийтлэл
Хаус дизайн
Үнэ ханш
Тендер
Нийтлэлчид
Бусад
Ийм шөнийн клубт хүн болгон татагдахгүй гэж үү...
Баярмаа
2019-11-06
Алдаа мэдээлэх
2464
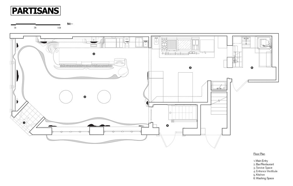
Та ямар орчинд байхыг хүсдэг вэ? Дулаан уур амьсгал, нүдээ олсон дитайл хэсэг, дуу хөгжим, анхилуун үнэр энэ бүхэн таньд сайхан сонсогдож байна уу?
Дээрх бүгдийг цогцлоосон газар бол Канадын Торонто хотноо байрлах “Raval” шөний клуб юм. “Raval” шөний клуб нь 21-р зууны Спанийн шинэ илэрхийлэмж болоод байна.
Канадын архитекторч зандан модоор долгион оруулан гайхалтай урлажээ. Тус зандан модыг ширээ, таазны дизайнтайгаа залгасан нь төгс чимэглэл гэлтэй.
Магадгүй та энэ чиглэлийн бизнес эрхэлдэг бол яагаад ийм дизайнтай хийж болохгүй гэж. Хүн бүхний очих дуртай газар болж, таны ашиг орлого ч өсөх болно гэдэгт итгэлтэй байна.
бүтээн
байгуулалт
Холбоотой мэдээ
Ачааллаж байна ..