Компани
Мэдээ
Бүтээгдэхүүн
Шинэ орон сууц
Нийтлэлчид
Үнэ ханш
Үл хөдлөх хөрөнгө
Номын сан
Шинээр нэмэх
Нэвтрэх
Бүгд
Компани
Мэдээ
Бүтээгдэхүүн
Шинэ орон сууц
Ажлын байр
Үйл явдал
Компани
Мэдээ
Бүтээгдэхүүн
Шинэ орон сууц
Ажлын байр
Үйл явдал
Үл хөдлөх хөрөнгө
Номын сан
Бизнес үүсгэх
Бүртгүүлэх
Нэвтрэх
Нүүр
Мэдээ
Мэдээ
Гадаад
Шинжлэх ухааны хүрээлэнгийн шинжлэх ухаанч барилга
×
Алдаа мэдээлэх
Нүүр
Мэдээ
Нийтлэл
Хаус дизайн
Үнэ ханш
Тендер
Нийтлэлчид
Бусад
Шинжлэх ухааны хүрээлэнгийн шинжлэх ухаанч барилга
Бурмаа
2019-11-06
Алдаа мэдээлэх
3104
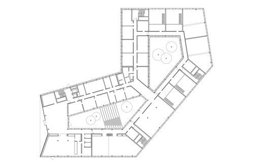
Архитектор: Birk Heilmever und Frenzel Architekten
Байршил: Уни Кассель, Штайнштрасс 19, 37213 Витценхаусен хот, Герман улс
Талбай: 6.200.0 ам метр
Төслийн он: 2014
Гэрэл зураг: Айб Зоэннэкен
Технологийн шинэчлэл, шинийг санаачлагчдын гол төв болсон “Кассель” шинжлэх ухааны хүрээлэн нь Германы Кассель их сургуулийн шинэ хотхоны үндсэн хэсэг нь ажээ. Шинжлэх ухаан болон бизнес хоорондын солилцоо болон шинэ байгуулагдсан компаниуд зах зээл дээр өөрсдийн санаагаа хэрэгжүүлэхэд нь дэмжлэг үзүүлэх зэргээр үйл ажиллагаа явуулдаг.
4 давхар энэхүү шинэ барилга нь нийтдээ 6.200 ам метр талбайтай. Үүнд, оффис, лаборатори, дэлгүүр, студи, семинар болон хурлын заал бүхий кафе зэрэг олон чиглэлийн хэсгүүд багтдаг. Томоохон арга хэмжээ зохион байгуулах өөр нэгэн гол хэсэг бол тус барилгын шинэ санааг турших лаборатори, хамтран ажиллах хэсэг юм. Энэ нь шинэ Шинжлэх ухааны хүрээлэнгийн хувьд бүтээлч санаачилгыг өдөөн урамшуулах хамгийн гол амин хэсэг гэж хэлж болно.
Матсер төлөвлөгөөнд тодорхойлогдсон хойд хотхоны дэвсгэр зураг нь долоон булан, хоёр дугариг хэсэгтэй Прецел нарийн боовны хэлбэрийг санагдуулам ажээ.
уран
барилга
Холбоотой мэдээ
Ачааллаж байна ..