Компани
Мэдээ
Бүтээгдэхүүн
Шинэ орон сууц
Нийтлэлчид
Үнэ ханш
Үл хөдлөх хөрөнгө
Номын сан
Шинээр нэмэх
Нэвтрэх
Бүгд
Компани
Мэдээ
Бүтээгдэхүүн
Шинэ орон сууц
Ажлын байр
Үйл явдал
Компани
Мэдээ
Бүтээгдэхүүн
Шинэ орон сууц
Ажлын байр
Үйл явдал
Үл хөдлөх хөрөнгө
Номын сан
Бизнес үүсгэх
Бүртгүүлэх
Нэвтрэх
Нүүр
Мэдээ
Нийтлэл
Барилгын материал
Модон хаус
×
Алдаа мэдээлэх
Нүүр
Мэдээ
Нийтлэл
Хаус дизайн
Үнэ ханш
Тендер
Нийтлэлчид
Бусад
Модон хаус
Барилга МН
2019-11-06
Алдаа мэдээлэх
6112
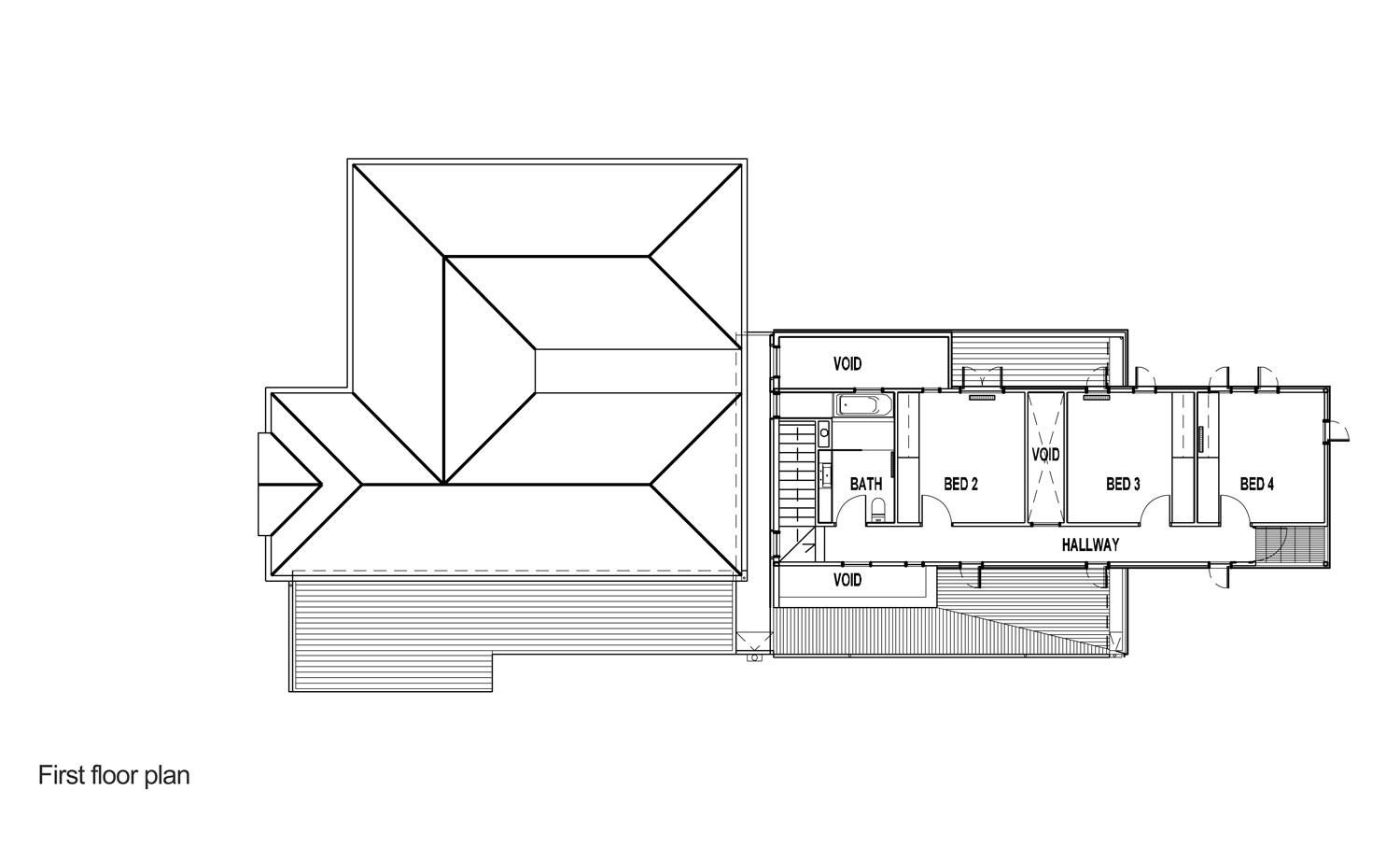
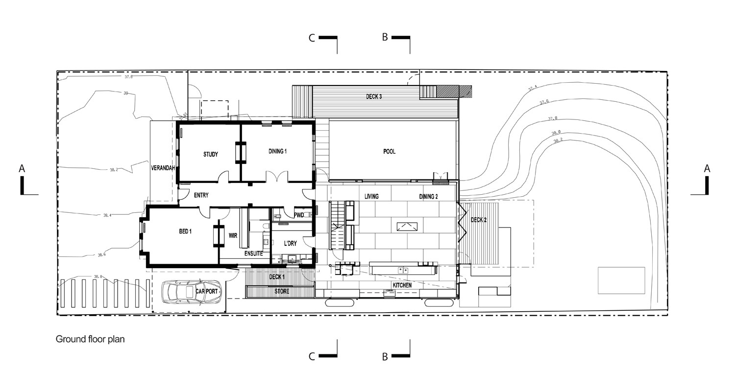
Гаднаасаа энгийн нэг гэр бүлийн байшин мэт харагдах энэхүү амины сууц нь олон зүйлээр таныг гайхшируулах болно. Jackson Clements Burrows студийн зохион бүтээсэн энэхүү сууц Мелбурн хотод байрлах бөгөөд 3 түвшингээс бүрдэнэ. Байшингийн дээд давхар дахь унтлагын 3 өрөө, 1 угаалгын өрөө нь нэгдүгээр давхрын гал тогоо, зочны өрөөний дээр дамнаж байрладаг.
Гадна ханыг бүхэлд нь модоор бүрсэн байх бөгөөд гадна заслын хэв маягтайгаа зохицуулж цонхнуудад модон хаалт хийж өгсөн.
Байшингийн гадна талд гайхалтай сайхан усанг санг төлөвлөж өгсөн ба зочны өрөөнөөс шууд усан луу гарах боломжтой. Түүнчлэн дотоод заслын хувьд гаднахаас дутахааргүй гоёмсог төлөвлөлттэй. Цэлгэр том өрөөнүүдэд нарны гэрэл, агаар чөлөөтэй нэвтрэх бөгөөд тавилгын сонголт болоод өнгөний зохицол нь тав тухтай орчинг дээд зэргээр бүрдүүлж чаджээ.
байшин
Холбоотой мэдээ
Ачааллаж байна ..