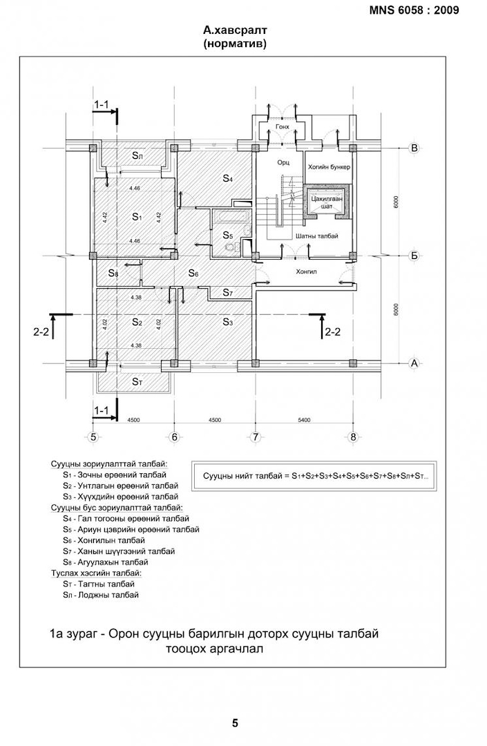
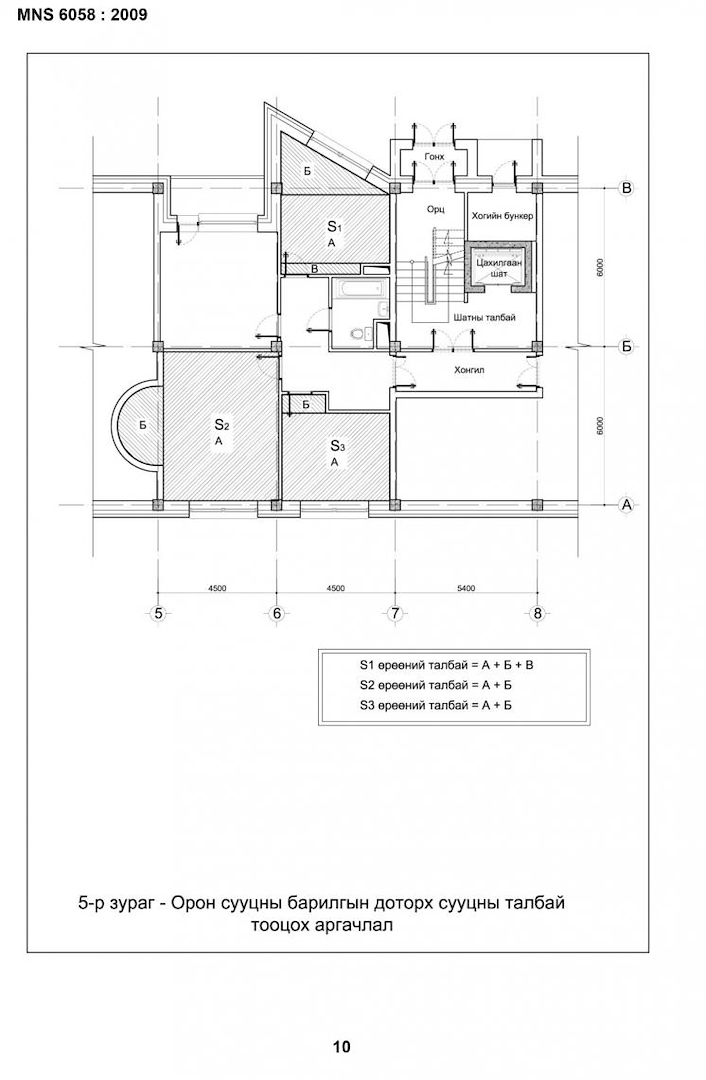
Барилгын доторх сууцны талбай тооцох аргачлал

Барилгын доторх сууцны талбай тооцох аргачлал
Сүүлийн жилүүдэд цөөнгүй барилгын компаниуд орон сууцныхаа метр квдратыг дутааж, олон иргэдийг хохироосон. Барилга барих тусгай зөвшөөрөлтэй компани болгон орон сууцны дотор талбайг хэмжих MNS 6058 : 2009 стандарт болон Барилгын Норм ба Дүрмийн 31-01-01, 31-09-07 мөрдөж ажиллах ёстой. Уг дүрэмд зааснаар барилгын дотор талбайг хэмжихдээ засал чимэглэл хийсэн дотор хананаас тооцно гэж заасан байдаг.
Нөгөө талаар орон сууц худалдан авч байгаа иргэд мөн уг стандартыг мэдэж байх нь чухал. Иймээс орон сууцны барилгын доторх сууцны талбай тооцох аргачлалыг хүргэж байна.
  

Холбоотой мэдээ