Шилэн ханатай өвөрмөц байшин

Шилэн ханатай өвөрмөц байшин
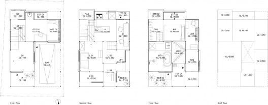
         Токиогийн Sou Fukimoto Architects уран барилгын студи нь тус хотод сүндэрлүүлсэн House NA хэмээх содон барилгаараа алдартай. Нэвт гэрэлтдэг тунгалаг хана бүхий орчин цагийн загвартай энэхүү барилга зэргэлдээх барилгуудаасаа харагдах байдал болон байгууламжийн хувьд тэс ондоо.   
       Барилгын дотор тал гэхэд бараг л ханагүйгээр төлөвлөгдсөн бол барилгын гадна ханыг орлох аварга том шилэн цонхнууд нь өдрийн гэрлийг дотогш шууд нэвтрүүлэх боловч хувийн амьдралыг хэтэрхий ил тод харуулах талтай. Гурван давхар энэ өвөрмөц байшинг холоос харахад зөвхөн модон рам байгаа мэт харагдах аж.
         Хана туургагүй, ил тод амьдрахын зэрэгцээ орчин үелэг, бусдаас содон байхыг хүсэгчдэд гарцаагүй таалагдах сууц гэдэгт эргэлзэхгүй байна.
 










 

Холбоотой мэдээ