Хөнгөн цагаан сууц

Хөнгөн цагаан сууц
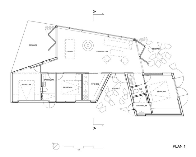
        Үзэсгэлэнт арлуудын дунд орших 90мкв бүхий хөнгөн цагаан сууц нь Норвегийн Вестфолдэд  далайн эрэг дээр байрлана.
        Анх босгосон модон сууц нь хуучирч элэгдэн ашиглах боломжгүй болсныг архитектурын MNAL студи “Jarmund Vignas” төслийн хүрээнд шинэчлэн засварлаж давстай усанд тэсвэртэй хөнгөн цагаан материалыг ашиглан нэгэн гайхалтай загварыг гаргажээ.
         Энэхүү сууцны дотоод зохион байгуулалтад  илүү анхаарч ажилласан бөгөөд газрын онцлогоос нь хамаарч маш содон баригдсан сууц юм. Хөнгөн цагаан сууцыг эргийн чулуулгууд дунд газрын гадаргуугийн дээр байрлахаар бүтээжээ. Хөнгөн цагаан гадаргуун  дээр нар тусахад ойн дунд хурцаар гэрэлтэж харагдах бөгөөд түүнийг хүрээлэн буй саарал бул чулуулгууд нь сүүдэрлэх боломжийг бий болгож, байшингийн өнгөтэй ч гойд зохицоно.

Холбоотой мэдээ