Англи хэв маяг

Англи хэв маяг
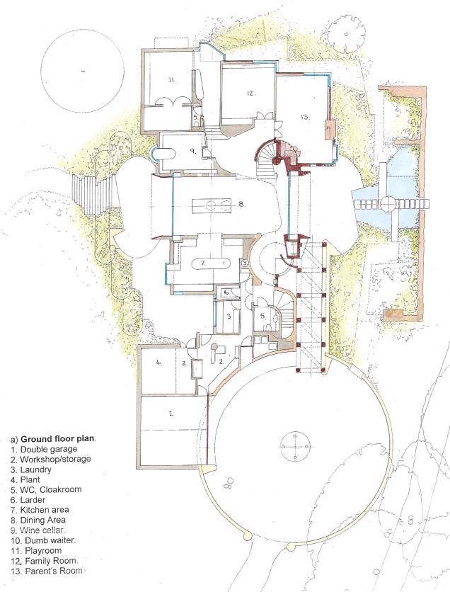
     Энэхүү өвөрмөц сууц Хэмпширээс холгүй Үндэсний цэцэрлэгт хүрээлэнгийн төв хэсэг буюу үзэсгэлэнт нугад байрладаг.  Өмнө нь чулуун балгас байсан фермийн эзний хуучин байшин бүхэлдээ шинэчлэгдэж, харин түүний хана л үлгэр домог өгүүлэх эрт үеийн үлдэгдэл болон хоцорчээ. Байшингийн ерөнхий хэлбэр нь хоёр цилиндрийн голд өндөр шилэн нуман хаалга байрлаж буй байдлаар хийгдсэн.

Холбоотой мэдээ