Зуйван дизайн бүхий коллеж

Зуйван дизайн бүхий  коллеж

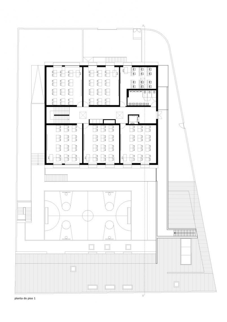
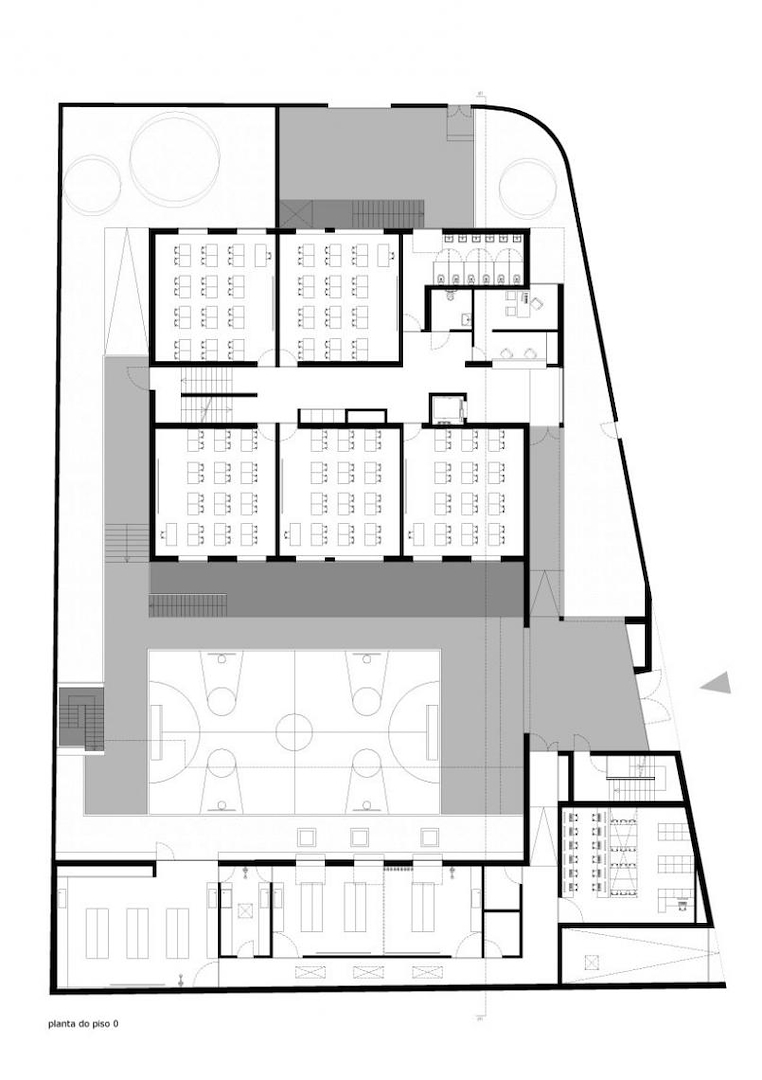
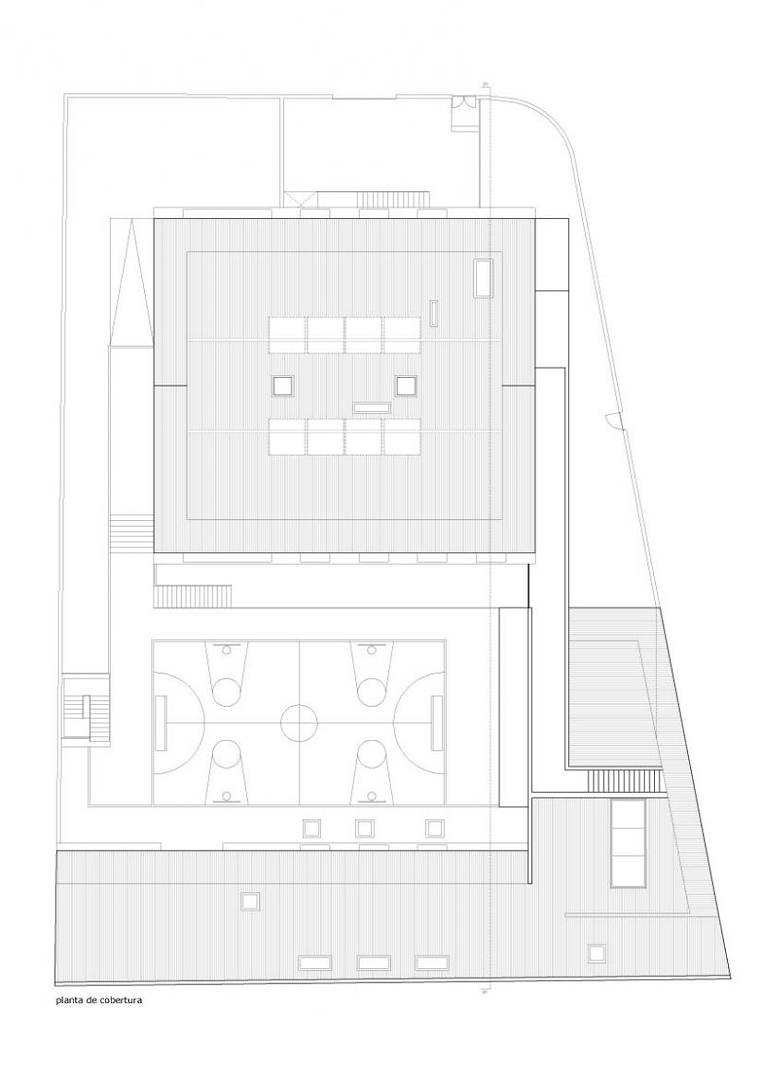
         Уран барилгач Avelino Oliveira-ийн бүтээл,  Португаль улсын Порто хотод байрлах зуйван хэлбэртэй нэгэн хувийн коллежийн зураг төслийг танилцуулж байна. Портогийн Cebes коллеж нь хотын хамгийн шинэ, эрч хүчтэй хувийн дунд сургууль бөгөөд энд хотын захиргаа бас байрладаг ажээ. Орчин үеийн шинэлэг дизайн, орон сууцны архитектур шинж чанарыг нэгтгэсэн энэхүү барилгын хүрээлэн буй орчин нь маш эмх цэгцтэй бөгөөд  ойр орших нэгэн тансаг гэр бүлийн хувийн сууцны архитектурын хэв маягийг өөртөө тусгасан байдаг. Уг төслийг хариуцсан архитекторууд өөрсдийн төсөл, хөрш саахалтын сууцны онцлогтой хэрхэн уялдсан талаар ингэж ярьжээ:  

"Бид Marechal Гомес өргөн чөлөөний  өвөрмөц төрхийг хадгалж, алдартай архитектурын элементүүдийг шингээхийг зорьсон. Портогийн гол хурдны замаас хол орших байрлал нь хотыг бага нягтралтай, томоохон  суурин газрын хэв маягаас татгалзахад нөлөөлдөг. Тиймдээ ч барилгын загварыг орчин тойронд зохицсон, хангалттай талбай бүхий зохион байгуулахад дөхөмтэй байлаа.”

Коллежийн барилга нь нэгдүгээр давхрын цайны газар, гал тогооны өрөө, ажилчдын өрөө, хүлээлгийн өрөө, оюутан, багш нарын чөлөөт цагаа өнгөрөөх өрөө, таван анги танхим, бие засах газар, бусад давхарт байрлах анги танхимууд зэрэг  хэд хэдэн иж бүрдэл бүхий хангалттай орон зайг эзэлсэн боловсролын байгууллага юм.

Барилгын дотор засалд зонхилох цагаан өнгө нь орон зайн мэдрэмжийг дээшлүүлдэг байна. Өргөн цэлгэр цонхнууд нь байгалийн гэрлийг чөлөөтэй нэвтрэх боломжийг олгодог. Судалгааны танхим, номын сан, сурагчдын чөлөөт цагаа өнгөрөөх заал, халуун усны барилга зэрэг хэд хэдэн байгууламж шинэ коллежийн  төслийг бүрдүүлдэг ажээ.

Холбоотой мэдээ