Компани
Мэдээ
Бүтээгдэхүүн
Шинэ орон сууц
Нийтлэлчид
Үнэ ханш
Үл хөдлөх хөрөнгө
Номын сан
Шинээр нэмэх
Нэвтрэх
Бүгд
Компани
Мэдээ
Бүтээгдэхүүн
Шинэ орон сууц
Ажлын байр
Үйл явдал
Компани
Мэдээ
Бүтээгдэхүүн
Шинэ орон сууц
Ажлын байр
Үйл явдал
Үл хөдлөх хөрөнгө
Номын сан
Бизнес үүсгэх
Бүртгүүлэх
Нэвтрэх
Нүүр
Мэдээ
Мэдээ
Хараа булаам нууцлаг байшин
×
Алдаа мэдээлэх
Нүүр
Мэдээ
Нийтлэл
Хаус дизайн
Үнэ ханш
Тендер
Нийтлэлчид
Бусад
Хараа булаам нууцлаг байшин
Barilgamn journalist
2019-11-05
Алдаа мэдээлэх
3564
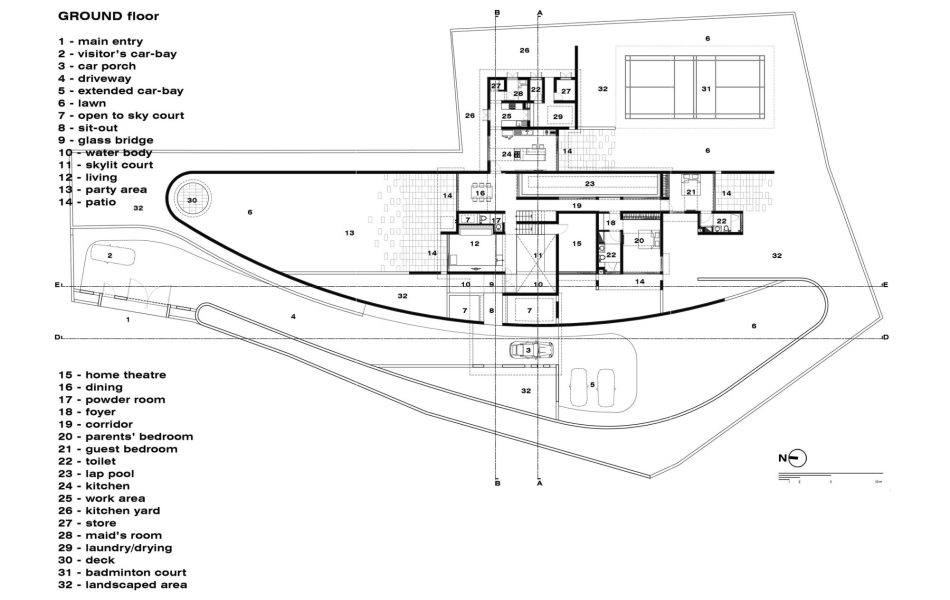
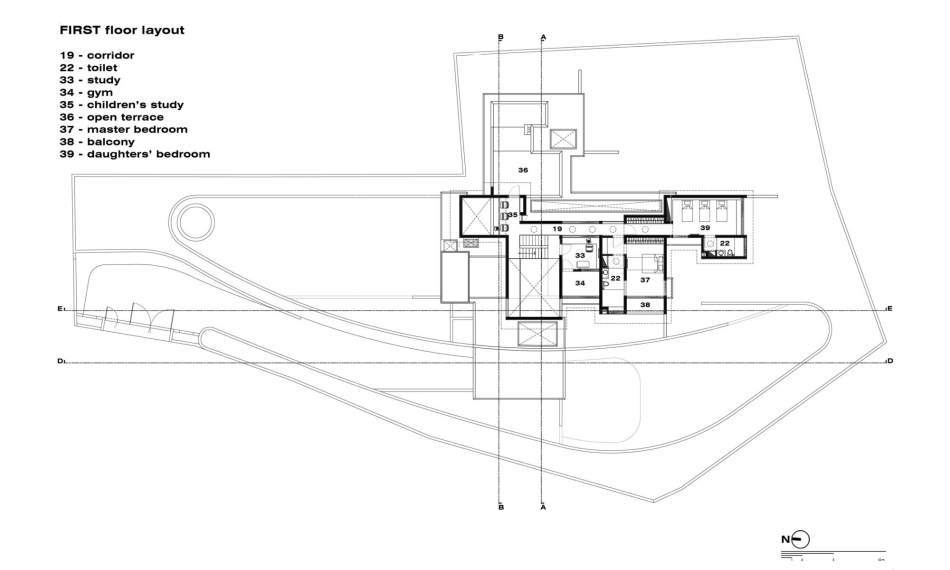
Энэтхэг улсын Керала хотод Лижо Рэни Уран барилгын студээс зураг төслийг гаргасан энэхүү байшин нь хятадын цагаан хэрмийг санагдуулах ажээ. Байшингийн гадуур бүсэлсэн чулуун хашааг чанх урагшаа үргэлжлэх байдлаар хийж гүйцэтгэжээ.
нууцлаг
байшин
Холбоотой мэдээ
Ачааллаж байна ..