Компани
Мэдээ
Бүтээгдэхүүн
Шинэ орон сууц
Нийтлэлчид
Үнэ ханш
Үл хөдлөх хөрөнгө
Номын сан
Шинээр нэмэх
Нэвтрэх
Бүгд
Компани
Мэдээ
Бүтээгдэхүүн
Шинэ орон сууц
Ажлын байр
Үйл явдал
Компани
Мэдээ
Бүтээгдэхүүн
Шинэ орон сууц
Ажлын байр
Үйл явдал
Үл хөдлөх хөрөнгө
Номын сан
Бизнес үүсгэх
Бүртгүүлэх
Нэвтрэх
Нүүр
Мэдээ
Мэдээ
Англи хэв маяг
×
Алдаа мэдээлэх
Нүүр
Мэдээ
Нийтлэл
Хаус дизайн
Үнэ ханш
Тендер
Нийтлэлчид
Бусад
Англи хэв маяг
Barilgamn journalist
2019-11-05
Алдаа мэдээлэх
3028
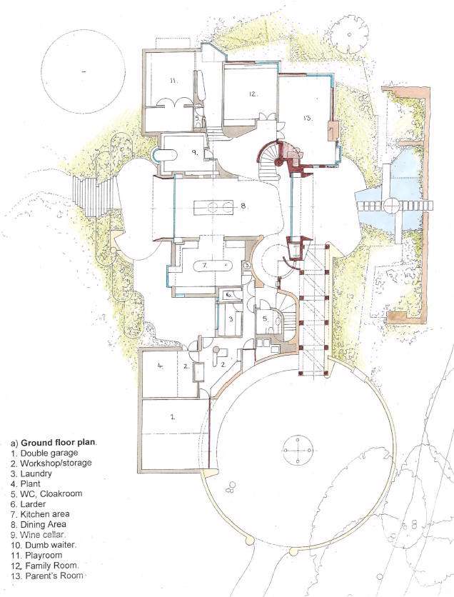
Английн өмнөд Хэмпширээс холгүй Үндэсний цэцэрлэгт хүрээлэнгийн төв хэсэг буюу үзэсгэлэнт нугад байрлах нэгэн хаусыг танилцуулахаар бэлтгэлээ.
англи
хаус
Холбоотой мэдээ
Ачааллаж байна ..