Хойд гол гэж орчуулагдах тус барилга нь АНУ-ын Колорадо мужийн Денвер хотод байрлах орон сууцны төсөл юм. Энэ төсөл нь орон сууцны олон төрлийн давуу талтай бөгөөд орчин үеийн дизайн, дэвшилтэт технологи, тав тухтай амьдралын орчин бүрдүүлжээ. Төсөл нь голдуу дээд зэрэглэлийн орон сууцтай бөгөөд студийн буюу нэг, хоёр хүн амьдран суух зориулалттай. Орчин үеийн загварлаг дизайн, тав тухтай орчин, биеийн тамирын заал, амралтын газрууд болон ашиггүй талбай гэгддэг дээврийг ч мөн цэцэрлэг, усан оргилуур болгон тохижуулжээ. Денвер хотын төв хэсэгт, голын хөвөөнд байрлах тул тус голын нэрээр нэрлэжээ.
Олон улсад ногоон барилга үнэлэх олон төрлийн үнэлгээ байдаг ч Fitwel нь барилга, байгууламж хүний биеийн болон сэтгэцийн эрүүл мэндэд эерэгээр нөлөөлөх зорилгоор бүтээгдсэн үнэлгээний систем юм. Энэ систем нь барилга, байгууламжийн дизайн, зохион байгуулалт, хэрэглэгчдийн амьдралын хэв маягийг сайжруулах замаар эдгээр хүчин зүйлсийн нөлөөг судалдаг.

Fitwel-ийн гол зорилго нь:
● Эрүүл мэндийг дэмжих: Байгууллагын ажилтнуудын эрүүл мэндэд эерэг нөлөө үзүүлэх.
● Байгаль орчны хамгаалал: Эко шийдлүүдийг дэмжих.
● Үл хөдлөх хөрөнгийн үнэ цэнэ нэмэгдүүлэх: Эрүүл мэндийн стандарт хангахад анхаарах.
МАД Архитектур /MAD Architects/ компанийн дизайнаар бүтсэн тус төсөл нь Biophilia буюу байгальд ээлтэй, байгальтай нэгдсэн утга санааг бодитой илэрхийлэхийг зорьжээ. Энэхүү компанийн архитекторууд нь орчин үеийн, ухаалаг шийдэл бүхий өнгө үзэмжтэй дизайнаар алдартай. Тус барилгын бүтээц, орчин үеийн орон сууц, нийтийн талбайн зохион байгуулалт зэрэгт онцгой анхаарсан байдаг. MAD Architects нь Денвер хотын архитектурын салбарт нэр хүндтэй бөгөөд тэдний олон бүтээл орчин үеийн, байгаль орчинд ээлтэй шийдлүүд агуулдаг. "One River North" орон сууц нь тэдний бүтээсэн нэгэн гайхамшигт жишээ болж, орон сууцны архитектурын шинэ стандарт тогтоосон юм.

Өрөөний задгай тагтны харагдах байдал
16 давхар, орчин үеийн архитектурын өвөрмөц шийдэл бүхий тус орон сууцны барилгын бүтээн байгуулалтын ажил 2014 онд нээлтээ хийсэн ч 2020 оны дунд үед оршин суугчдаа хүлээн авч, олон нийтэд танигджээ. Тус орон сууцны түрээсийн үнэ сард 2500-15000 ам.долларын хооронд хэлбэлздэг байна. Орон сууцны өрөөний сонголт болон метр квадратын хэмжээ харилцан адилгүй бөгөөд 1-3 хүртэлх унтлагын өрөөтэй 187 түрээсийн орон сууцтай. Орон сууцны өрөө бүр задгай тагт болон уулархаг нутгийн байгалийн үзэмж тольдох өргөн цонхтой аж. Барилгын тохижилтод Рокки уулс болон Денверийн тэнгэрийн хаяаг саадгүй харах боломжтой усан сан, амралтын өрөө, цэцэрлэг бүхий дээврийн террас багтсан. Мөн 9,000 квадрат талбай бүхий нэг давхрын худалдааны талбайг мөн түрээслэх боломжтой. Үүдний хэсгээс 6-р давхар хүртэл явган шат үргэлжлэх бөгөөд явган зорчигчийг уйдахааргүй ногоон байгууламж, цэцэрлэг, амрах хэсэг болгон тохижуулжээ.
Тиймээс оршин суугчид “орчин үеийн дизайн болон өндөр зэрэглэлийн амьдрах орчин бүрдүүлэн тухайн бүсийн хөгжилд чухал үүрэг гүйцэтгэж буй” хэмээн үнэлдэг байна. Урлагийн дүүрэгт орших тус барилгын гадна төрх ойр хавийнхны анхаарлыг нэлээдгүй татсан бөгөөд 13,000 гаруй квадрат талбайг ногоон байгууламж болгон тохижуулсан. Тус архитектурын компани Biophilia хэв маягийг эрхэмлэн ажилласан ч байгалийг тэр чигт нь хуулбарлах нь гол зорилгоо гэж үзээгүй бөгөөд чулуун хавцлыг сэтлэн горхи урсаж буй мэтээр илэрхийлэхийн тулд барилгын нүүрэн хэсгийг шилэн фасадаар, сэтлэн урсаж буй горхийг ногоон байгууламж, онцгой чулуун хавтангаар бүтээжээ.
Денрев хот нь анх 1858 онд алтны хайгуулын үеэр байгуулагдсан хот ба эдийн засаг, соёл урлаг, худалдааны гол бүс болж хөгжсөн юм. Өвөлдөө цас их ордог учир цаначид, өвлийн спортын тамирчдад бэлтгэл хийх таатай орчин бүрддэг байна. Эртнээс хөгжсөн хот тул музей, театр, симфони, дуурийн театр олонтой. Тус барилга ерөнхийдөө урлагийн хотод сүндэрлэж буй бөгөөд хотын гоо үзэмж, харууц зэрэг нь тус төслийн үнэ цэнийг нэмэгдүүлж байна.

Барилгын дээрээс харагдах байдал. Дээвэр дээрх ногоон байгууламж
"One River North" орон сууцны барилгад олон төрлийн үйлчилгээтэй ресторан, худалдааны төвүүд, цэцэрлэг, хүүхдийн тоглоомын газар олон учир оршин суугчид болон жуулчдад түр саатах таатай нөхцөл бүрддэг.

Дээврийн план


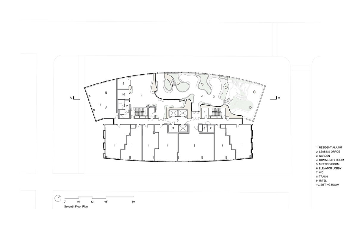
Долдугаар давхар болон 14-р давхрын план зураг. Давхруудын өрөөний тохижилт, хэмжээ харилцан адилгүй
"One River North" барилгын интерьер нь орчин үеийн, элит амьдрах орчин бүрдүүлсэн бөгөөд гэрэлтүүлэг, материалын хослол, задгай тагтны зохион байгуулалт нь ихээхэн анхаарал татдаг.

Чулуун хавтан, блокоор хийсэн барилгын нүүрэн талын харууц
● Орчин үеийн интерьер: Байршилтайгаа нийцсэн, урлаг, дизайны агуулга шингээсэн интерьер нь нээлттэй, тансаг орон зай бүрдүүлж, хүн бүрийн хэрэгцээнд тохирсон.
● Шилэн фасад, байгалийн гэрэл: Шилэн фасад нь өрөөг байгалийн гэрлээр дүүргэх, байгалийн үзэмжийг бүрэн мэдрэх боломж олгодог. Ингэснээр орон сууц нь илүү саруулхан уужим мэдрэмж өгнө.
● Нэмэлт интерьерийн элементүүд: Металл, мод, чулуу зэрэг байгалийн материалуудыг чамин аргаар ашиглаж, халаалт, агааржуулалт, дуу чимээ тусгаарлагч зэрэг технологийн шийдлүүдийг өндөр түвшинд нэвтрүүлсэн.
● Шинэлэг шийдлүүд: Орон сууцны өрөөнүүдэд орчин үеийн тавилга, дизайнтай холилдсон ухаалаг шийдлүүд (жишээ нь, ухаалаг гэрэлтүүлэг, нууцлаг тавилга гэх мэт) агуулагдана.

Тус барилгын талаар MAD архитектур компанийн үүсгэн байгуулагч, ерөнхий архитектор Ма Янсонг “Барилгад амьдарч байгаа хэр нь хавцлын дотор байгаа мэт байгалийн ландшафтанд автсан сэтгэгдэл төрнө, төсөөлөөд үз дээ…” хэмээжээ.
Уншигчдын бичсэн сэтгэгдэлд barilga.mn хариуцлага хүлээхгүй болно. Манай сайт ХХЗХ-ны журмын дагуу зүй зохисгүй зарим үг, хэллэгийг хязгаарласан тул та сэтгэгдэл бичихдээ бусдын эрх ашгийг хүндэтгэн үзнэ үү.