Улаанбаатар хотын нутаг дэвсгэрийн 98 хувь нь идэвхтэй газар хөдлөлтийн бүсэд хамаарагддаг байна. 1995-2009 онд нийт 600 гаруй сулавтар хүчтэй газар хөдлөлт бүртгэгдсэн бөгөөд Улаанбаатар хот орчимд 2022 онд 1047 удаа, 2023 оны эхний гурван сарын байдлаар 331 удаагийн давтамжтай газар хөдлөлт бүртгэгдсэн нь гамшгийн болзошгүй эрсдэл үүсэж болох.
Улаанбаатар хотын 2002 оноос өмнө баригдсан барилга байгууламжид газар хөдлөлтөд тэсвэрлэх чадварын үнэлгээ хийж, паспортжуулах барилга байгууламжийн 940 орчим барилгад мэргэжлийн байгууллага чанар байдалд дүгнэлт гаргасан байдгаас 80% орчим нь газар хөдлөлтөд тэсвэргүй 195 барилга нь хүчитгэх шаардлагатай 540 барилгыг буулган дахин төлөвлөх шаардлагатай гэсэн байдаг.
Өнөөгийн мөрдөж байгаа барилга байгууламжийн норм, нормативын техникийн баримт бичгээр барилгын чанар байдал, эрүүл ахуйн шаардлага хангахгүй барилга байгууламжийг буулгах, хүчитгэх, сэргээн засварлан архитектурын хийцийг авч үлдэх, соёлын өвийн болон архитектурын барилга байгууламжийг сэргээн засварлах, бэхжүүлэн авч үлдэх зэргээр барилга байгууламжийг эрэмбэлэх шаардлагатай байгаа нь харагдаж байдаг.
Сэтгүүлийн өмнөх дугаарт Барилга байгууламжийн буулгалтын процессыг төлөвлөх талаар дэлгэрэнгүй дурдсан бөгөөд энэ удаад “Барилга байгууламжийг буулгах процессын ажил гүйцэтгэх аргачлал”-ын талаар маш хураангуй хэлбэрээр доорх байдлаар жишээг орууллаа.
Тухайн техникийн шаардлага лавлах нь Барилгын норм ба дүрэм Барилгын байгууламжийн буулгах үйл ажиллагааны дүрэм БД 20-101-12
БД 20-101-12 Барилга байгууламжийн буулгах үйл ажиллагааны дүрэм
Дөрөв. Буулгах ажлын арга хэлбэрүүд
4.1 Буулгахаар төлөвлөсөн барилгын архитектур төлөвлөлт, бүтээцийн шийдлийг судалж буулгах ажлын технологи тухайн нөхцөл боломжид тохируулан дор дурдсан нийтлэг аргуудаас оновчтой шийдлийг гүйцэтгэгч, захиалагч хамтран сонгож хэрэглэнэ. Үүнд:
4.1.1 Өндрөөс эхлэн тар ажиллагаагаар буулгаж зөөвөрлөх;
4.1.2 Өргөн тээвэрлэх машин техникийг ашиглан гар ба механикжсан аргаар задлан буулгах технологи;
4.1.3 Барилгын даацын үндсэн хийцийг хөрөөдөн (механик болон цахилгаан хөрөө хайч, хийн доргиур ашиглан) салгах технологи;
4.1.4 Барилгын үндсэн хийцүүдийг хийн даралтат механик алхаар, гараар буулгах арга;
4.1.5 Барилгын үндсэн хийцүүдийг экскаваторт тоноглосон механик хөрөө болон бутлан буулгах арга;
4.1.6 Төрөл бүрийн жинтэй механик муна, лантуугаар цохиж хэмхлэн задлах технологи (төрөлжсөн тухайн механизм бүхий тусгай мэргэжлийн байгууллага, хүмүүсийг татан оролцуулж гүйцэтгүүлэх);
4.1.7 Даацын хийцүүдийг тэсрэх бодис ашиглан нураах (цэргийн болон цэргийн бус, тэсэлгээний хэрэгсэлтэй ажиллах эрх бүхий тусгай мэргэжлийн байгууллага, хүмүүсээр гүйцэтгүүлэх)-аа тухайн барилга байгууламждаа тохируулан сонгоно.
Тав. Барилгыг буулгах ажилд бэлтгэх
5.1 Барилга Байгууламжийг буулгах бэлтгэл ажилд дараах асуудлыг хамруулж үзнэ. Үүнд:
5.1.1 Барилга байгууламжийг буулгах ажлыг эхлэх, үргэлжлүүлэх зөвшөөрлийг орон нутгийн засаг захиргааны болон хяналтын байгууллагаас авсан, холбогдох байгууллагуудад (замын цагдаа, эрчим хүчний хангагч байгууллага, ус сувгийн газар, мэргэжлийн хяналтын газар гэх мэт тухайн буулгах ажилд зохицуулалт, урьдчилан сэргийлэх арга хэмжээнд оролцох шаардлагатай газруудад) мэдэгдсэн байх;
5.1.2 Үйлдвэрийн барилгын тоног төхөөрөмжийг буулгах нөхцөл, барилгын бүтээц эдлэлийг машин механизм ашиглан зөөн шилжүүлэх горим ба график гаргасан байх;
5.1.3 Болзошгүй ослын үед хамтран ажиллах ба нөхцөл байдлыг шуурхай зохицуулах дотоод журам гаргасан байх;
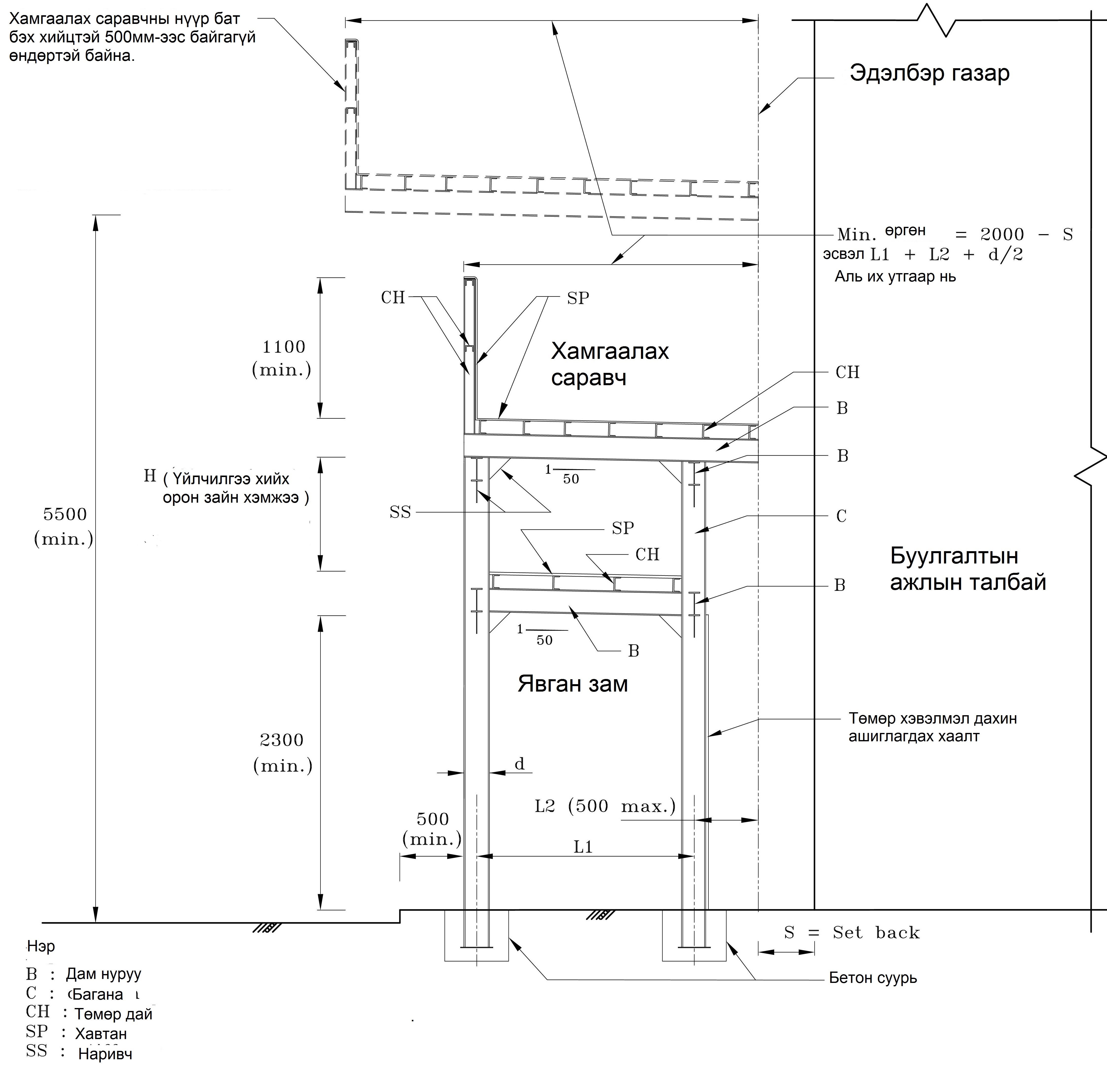
5.1.4 Буулгах ажилд шууд хамаарахгүй барилгын талбайн ойр орчимд амьдардаг зорчдог иргэд, ойр орчмын барилга байгууламж, гудамжны хөдөлгөөнд саад болохгүй, эрсдэлд оруулахгүй байхаар орц гарц, хаалт хашлага, анхааруулах тэмдэг зэргийг бэлтгэх, байршуулах;
5.1.5 Буулгах байгууламжийн цахилгаан эрчим хүчний эх үүсвэр, инженерийн шугам сүлжээний бүх хангамж таслагдсан байх;
5.1.6 Барилгын гүйцэтгэгч нь буулгах барилга байгууламжийн зураг төслийг нарийвчлан судалж, буулгах ажлыг гүйцэтгэх нөхцөл байдалтай танилцсаны үндсэн дээр барилгын талбайд болон талбайн гадна хийгдэх бэлтгэл ажлууд, байгаль орчныг хамгаалах үйл ажиллагаа, буулгах ажлыг аюул осолгүй гүйцэтгэх арга хэмжээг тусгасан ажил гүйцэтгэх төсөл (АГТ)-ийг боловсруулсан байх;
5.2 Ажил гүйцэтгэх төсөл (АГТ):
5.2.1 АГТ-ийг захиалагч гүйцэтгэгч зөвшилцөж хамтран батална.
5.2.2 Барилга байгууламжийг буулгах АГТ-ийг боловсруулах үндсэн өгөгдөл:
5.2.2.1 Ажил гүйцэтгэх төсөл боловсруулах даалгавар;
5.2.2.2 Буулгах барилгын тухай дэлгэрэнгүй мэдээлэл (зураг төслийг оролцуулан)
5.2.2.3 Гүйцэтгэгч байгууллагын ажиллах хүчний мэдээ (бригад салааны нэр мэргэжил зэргээр хүний тоо, нэгтгэсэн ээлжээр явах зохион байгуулалт);
5.2.2.4 Үндсэн машин механизм, гар багаж тоноглол, тээврийн хэрэгсэл, түр бэхэлгээний талаарх дэлгэрэнгүй мэдээлэл;
5.2.2.5 Зарим төрлийн ажлыг гүйцэтгэхтэй холбоотой техник технологийн баримт бичиг, холбогдох норм ба дүрэм, заавар зэрэг болно.
5.2.3 Буулгах ажлын машин механизм, тээврийн хэрэгсэл ба бага механикжуулалтын тоног хэрэгсэл болон иж бүрэн багаж нь тухайн ажлын технологид нийцсэн, ажлыг гүйцэтгэх хүчин чадалтай байвал зохино.
5.2.4 Буулгах ажлын хөдөлмөр зохион байгуулалтыг барилгын гүйцэтгэгч байгууллага дараах байдлаар тодорхойлно:
Ажлыг гүйцэтгэхдээ хөдөлмөрийн хоршилт ба хуваарилалтын хамгийн оновчтой хэлбэрийг сонгох;
Гүйцэтгэх ажлын технологид нь тохирсон мэргэжил ба зэрэгтэй ажилчдыг сонгох;
Хөдөлмөрийг ажилбар ба бага барилаар нь хувааж, тэдгээр хуваалт бүрд тохирсон хүн хүч хуваарилах;
Хүн хүчийг бригад ба салаа болгон хоршихдоо ажлын хэмжээнд нь харгалзуулах.
Зургаа. Буулгах ажилд хориглох ажиллагаа
6.1 Барилга байгууламжийг холбогдох шийдвэр, зөвшөөрөлгүйгээр буулгах;
6.2 Ослын үед аврах ажиллагааг явуулахтай холбоотойгоор барилга байгууламжийг буулгах үйл ажиллагааг гүйцэтгэхээс бусад нөхцөлд ажил гүйцэтгэх төсөлгүйгээр, мэргэжлийн бус байгууллагаар гүйцэтгүүлэх;
6.3 Аюулгүй байдал, хамгаалалтын арга хэмжээ авахгүйгээр буулгах ажлыг гүйцэтгэх;
6.4 Барилгын зориулалттай хүнд механизмыг зориулалтын бусаар ашиглан буулгах ажиллагааг гүйцэтгэх;
6.4.1 Бульдозероор барилгыг түрж буулгах, ган татлагаар оосорлон татуулж чирүүлэх;
6.4.2 Хийц хэсгийг жижиглэн салгаагүй байхад буулгах эд ангийг кранаар өргүүлэн эвдэлж салгах;
6.4.3 Ашиглаж байгаа дулаан, цахилгаан, холбоо салгаагүй байхад, холбогдох газарт мэдэгдэхгүйгээр буулгах ажлыг эхлэх;
6.4.4 Салгаж авах зориулалттай материал, эд зүйлсийг технологийн бус аргаар буулгаж эвдлэх.
6.5 Буулгах ажилд гал тавьж шатаах, усаар буудуулах, байлдааны зэвсэг хэрэглэх;
6.6 Буулгах ажлыг дутуу гүйцэтгэж орхих;
ТЕХНОЛОГИЙН ЗААВАРЧИЛГАА- ЗУРАГ ТӨСӨЛТЭЙ ТАНИЛЦАХ
БУУЛГАЛТЫН УДИРДЛАГА-ЯВЦЫН ХЯНАЛТ
ТАЛБАЙН БЭЛТГЭЛ АЖЛЫГ ХАНГАХ
Дээрээс доош чиглэлтэй буулгалт, түлхэх болон татаж буулгах ажлын процесст ажиллах үндсэн машин механизм экскаватор, өргүүр гэх мэтийн өнгийлт, ачаа даацын хязгаарыг тодорхойлсон байна.
Буулгалтын ажлын процесст бутлагч, таслагч, алх зэрэг энгийн багаж суурилуулсан машин механизмыг хэрэглэж болно.
Буулгах хийц эдлэлийн нурах чиглэл, тооцоолоогүй нуранги үүсэх эрсдэлийг үнэлэн хийц хэсгүүдийг түр бэхлэх, тулгуур татаас хийх зураг гаргасан байна.


БАРИЛГА БУУЛГАХ


ХӨДӨЛМӨРИЙН АЮУЛГҮЙ БАЙДАЛ, ЭРҮҮЛ АХУЙ
ХАБЭА-н удирдлага нь барилгын талбайн зохион байгуулалт, ажил гүйцэтгэх төсөл, технологийн карт зэрэг бичиг баримтуудтай нягт уялдаатай байна.
ХАБЭА-Н СУРГАЛТ, ЗААВАРЧИЛГАА
Сургалт:
ИТА, ажилчид хөдөлмөрийн аюулгүй байдал, эрүүл ахуйн сургалтад үе шатны ажил эхлэхээс өмнө нэг удаа хамрагдах шаардлагатай.
Ерөнхий зааварчилгаа:
Барилга угсралтын талбайд ерөнхий гүйцэтгэгч байгууллагын хөдөлмөрийн дотоод журмын заалтуудыг мөрдөж ажиллах бөгөөд энэхүү заалтыг сургалт дээр танилцуулсан байна.
ХАБЭА-н шаардлагатай холбоотой бүхий л зааварчилгааг сургалт дээр танилцуулж гарын үсэг зурж баталгаажуулсан байна.
Байгалийн гамшигт үзэгдэл, онцгой байдлын үед ажил гүйцэтгэх аргачлалд заасан арга хэмжээ аван ажиллана.
Үе шатны ажил эхлэх бүрт ажлын талбайд үзлэг шалгалт хийж болзошгүй эрсдэлийн үнэлгээг гарган эрсдэлээс хамгаалах арга хэмжээг авсан байна.
Тусгай зааварчилгаа:
Тус ажилтай хамааралтайгаар хийгдэх үе шатны ажилбар болгоны өмнө ХАБЭА-н ажилтан болон инженерүүдээс холбогдох тусгай зааварчилгааг авсны дараагаар ажил эхлэхийг зөвшөөрнө.
Барилгын буулгалтын ажлын үеийн эрүүл ахуй, аюулгүй байдал
Барилгыг буулгах ажлын аюулгүй ажиллагааг хангахын тулд дараах арга хэмжээг авна. Үүнд:
АГТ-ийн барилгын талбайн зохион байгуулалтын зурагт барилгын үйлдвэрлэл эрхлэх аюулгүй ажиллагаа (техник, машин, механизмын аюулгүй ажиллагаа, цахилгааны аюулгүй ажиллагаа) галын аюулаас урьдчилан сэргийлэх арга хэмжээ, ажлын байранд зааварчилгаа өгөх зэрэг дүрэм, журмыг нарийвчлан тусгах бусад болзошгүй ослыг гаргахгүй байлгах, аюулаас сэргийлэх тогтолцоог бий болгох зэрэг болно.
Барилгыг буулгах төслийн үе шат бүрт мэргэжлийн хариуцлагатай ажиллах хүчнээс бүрдэнэ. Үүнд:
Асбест байгаа эсэхийг шалгах, талбайд дээрх барилга болон ойр орчмын барилгад нөлөөлөх байдал, ажил явагдах талбайд газар дээр ба доор явагдаж буй үйл ажиллагааны байршлыг тогтоох зэрэг багц судалгаа, тайланг хийх хэрэгтэй.
Боломжит эрсдэлээс сэргийлэх нөхцөлөөр хангахад шаардлагатай зохих ёсны мэдээлэл өгөхийн тулд эрүүл ахуй, аюулгүй байдлын асуудлыг удирдах, хянах, зохицуулах урьдчилсан төлөвлөгөөг боловсруулах шаардлагатай.
Талбайн менежер ажилчдыг хянах, аюулгүйн ажиллагааг хангасан байх ёстой.
Туслан гүйцэтгэгч болон талбайн ажилчид хариуцлагатай албан тушаалтны өгсөн зааврыг дагаж мөрдөх үүрэгтэй бөгөөд хамтран ажиллагсдыг зохих үүргээ биелүүлж байгаа эсэхийг хянах ёстой.
Унаж буй материалд өртөж гэмтэл авах
Ажилчид болон хажуугаар өнгөрч буй хүмүүст тооцоолоогүй нуранги, хийсэж байгаа барилгын хаягдал зэрэгт өртөж гэмтэж болзошгүй. Ажлын аюулгүй байдлын төлөвлөгөө нь хүмүүсийг эрсдэлд орохгүй байх нөхцөлийг хангах. Үүнд: хориотой бүс буюу каск заавал ашиглах талбайг тогтоох, хэрэв шаардлагатай бол тодорхой тэмдэглэгээтэй хаалт эсвэл түр хашлага барих, өндөр хурдтай машин ашиглах, явган хүний замыг хучих, жолооч гэмтэхээс сэргийлж машины бүхээгийг бэхжүүлэх, дасгал сургуулилт хийх, ажилчдыг хянах зэрэг орно.
Тооцоолоогүй нуранги
Бүтээцийн судалгаа дараах зүйлийг багтаасан байх шаардлагатай. Үүнд: барилгын насжилт, түүний өмнөх үеийн ашиглалт, барилгын зориулалт, ойролцоох байгууламж, зайлуулсан материалын жин, газрын төвшнөөс дээш байрлах давхарт ашиглаж буй машин техник зэрэг орно. Буулгах ажлын аргачлалын тодорхойлолтод барилгыг тооцоолоогүй нурангиас урьдчилан сэргийлэхийн тулд буулгах ажлын дарааллыг тодорхой заах ёстой.
Аюултай материал
Аюултай материалд тоос, асбест, амьсгалын замыг гэмтээх талст цахиур зэрэг орно. Түүнчлэн барилгын талбайд цэвэрлэгдээгүй үлдсэн үйлдвэрлэлээс гарсан хүчил, будаг шатамхай шингэн, үл танигдах бортого, микробиологийн аюул /ялангуяа эмнэлгийн хуучин барилга/ зэрэг бохирдуулагч бодис болон материал байх боломжтой.
Дуу чимээ ба чичиргээ
Давтамжтай чанга дуу нь хүний сонсголыг бүрэн гэмтээх боломжтой. Дуу чимээ ажилчид хоорондоо харилцан ойлголцоход бэрхшээл учруулах, аюулын дохио сонгох боломжийг хаах зэрэг эрсдэлийг учруулах магадлалтай. Буулгалтад ашигладаг чичиргээтэй гар багаж нь гар чичирхийллийн хам шинж үүсэх шалтгаан болдог. Ажилчдыг чичирхийлэлд өртөхөөс урьдчилан сэргийлэх арга хэмжээ авах, өртөлтийг боломжтой хэмжээгээр багасгах шаардлагатай.
Ажилчдын оролцоо
Барилгын ажилд оролцож байгаа хүн бүр талбайд авах урьдчилсан сэргийлэх арга хэмжээг мэддэг байх ёстой. Ажилчид эрүүл ахуй аюулгүй байдлын талаар шийдвэр гаргахад оролцдог, түүнчлэн эрүүл бөгөөд аюулгүй орчинд ажиллах ёстой.
Уншигчдын бичсэн сэтгэгдэлд barilga.mn хариуцлага хүлээхгүй болно. Манай сайт ХХЗХ-ны журмын дагуу зүй зохисгүй зарим үг, хэллэгийг хязгаарласан тул та сэтгэгдэл бичихдээ бусдын эрх ашгийг хүндэтгэн үзнэ үү.