Бид энэ удаад “ХАУС ДИЗАЙН” каталогийн шилдэг хаус загварын хамгийн жижиг м.кв-тай амины орон сууцны дэлгэрэнгүй танилцуулах гэж байна. Энэхүү загвар 42,7м2 дуплекс хаусны төрөл бөгөөд эрчим хүчний хэмнэлтийн тооцоо хийлгүүлэхэд 38% хувийн эрчим хүчний хэмнэлтийг хангаж байсан. Харин 2023 оны байдлаар тухайн хаусны бүтээцийн технологиудыг илүү дэвшилтэт болгож, А+ төрлийн барилга болсон бөгөөд эрчим хүчний өндөр хэмнэлттэй 61% хувийг хангасан барилга болсон.
Төлөвлөлт
Өөрийн байшингаа барихаар төлөвлөж буй иргэд 8х6 эсвэл 10х8 гэдэг ч юм уу шууд компактны харьцааг авч төлөвлөх нь буруу эхлэл болдог. Та өөрийн амьдралын тодорхой цаг хугацааг өнгөрөөх, тав тухтай амьдрах орчныг төлөвлөхдөө баригдмал хэмжээсийг бүү ашиглаарай. Байшингаа барих гэж буй газрын орчин нөхцөлийг сайтар судлаарай. Судлах явцад нар хаанаас мандаж, хаана жаргаж байгааг тооцоолох, гадна орчинтой хэрхэн байшин маань харьцах буюу цэлгэр том цонх, орц гарцыг нь хаана хэрхэн оновчтой зөв төлөвлөхөөс эхлээд багагүй зүйлийг өөрийн амьдралын хэв маягт тохируулан судалж төлөвлөх ёстойг мартаж болохгүй.
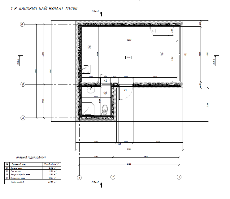
Тус 47,2 м.кв - д унтлагын хэсэг, зочны өрөө, гал тогоо, ариун цэврийн өрөө, задгай террас зэргийг төлөвлөсөн бөгөөд цонхыг том цэлгэр байхаар тооцоолсноороо давуу талтай. 
Суурь
Бидний танилцуулж байгаа амины орон сууц нь нэг маягийн зураг төсөл юм. Ийм төрлийн зураг төслийг авч хэрэглэж байгаа тохиолдолд суурийн зургийг өөрийн газрын хөрсөнд тохируулан инженерээр холбож зуруулах нь зардал багатай хямд болно. Та өөрийн байшин барих газрын хөрсийг тодорхойлохын тулд Геологийн байгууллагаар судалгааны ажил хийлгэж дүгнэлт гаргуулсан байвал маш сайн юм. Үүнээс хамаарч суурийн зургийг зуруулахдаа зардлыг хэмнэх аргуудыг зурагт тусгуулах боломжтой болдог.
Тус амины орон сууцны хувьд азрын хөрс, налуугаас хамаарч 40см өргөнтэй 60см гүн суухаар төмөр бетон шугаман суурь, Праймер хар цаас наахын өмнө бетон дээр түрхэнэ. Хар цаасан ус чийг тусгаарлагч /ТехноЭласт ЭПП/, 50мм зузаан EPS хөөсөн дулаалга төлөвлөсөн болно. Үндсэн нягтруулсан хөрсөн дээр 100мм төмөр бетон цементэн дэвсгэр, полимер ус тусгаарлагч, 2 үе ам даруулж XPS дулаалга 100мм дээр 50мм цементэн тэгшилгээ зургийн дагуу хийж гүйцэтгэнэ.
Ханын бүтээц
Ямар суурь хийх гэж байгаагаас хамааран ханын материалыг судлах нь оновчтой юм. Цаашилбал дулаан тусгаарлах чадвар зэргийг нарийн судлах хэрэгтэй. Тухайн материал үйлдвэрлэгч байгууллага нь БАК-ын дүгнэлт, дулаан дамжуулалтын эсэргүүцэл зэрэг дулаан тусгаарлалтын үзүүлэлтүүдийг мэргэжлийн байгууллагын лабораторийн болон экспертүүдийн дүгнэлтийг авсан байдаг. Үүнийг нь сайн харж сонгох нь зөв бөгөөд алдаагүй сонголт болно. Бид энэ удаагийн нийтлэлд танд туслах үүднээс сүүлийн үед трэнд болоод байгаа ICF технологийн блокоор эрчим хүчний өндөр хэмнэлттэй амины орон сууцны ханын бүтээцийг төлөвлөсөн. Хэрвээ та МАК-ын блокоор эсвэл өөр төрлийн блокоор хийж байгаа тохиолдолд шугаман суурийг тухайн ханын бүтээцэд тохируулан төлөвлөнө.
Термоблок- бүрэн цутгамал барилгын технологи нь АНУ, Канад, ОХУ зэрэг манай оронтой ижил цаг ууртай орнуудад 30 жилийн турш амжилттай ашиглагдаж буй барилгын систем юм. Уг блок нь 30 см зузаантай ханын бүтээц бөгөөд гадна талдаа 6 см EPS дотор талдаа 6см EPS байх ба голын бүрэн цутгамал бетонон хана 18 см зузаантай байна. Уг технологи нь ХБНГУлсын барилгын техникийн хүрээлэнгийн 2004 оны 7-р сарын 6-ны Z- 15.233 тоот гэрчилгээтэй.
Ханын бүтээцээ тодорхой болгосны дараа тухайн бүтээцтэйгээ уялдуулан бусад материалуудыг сонгох аргыг архитетор хүнтэй зөвшилцөн зөвлөгөө авч зурагтаа тусгаарай.
Эрчим хүчний тооцооны үзүүлэлт
Өнөөдрийн зах зээлийн өртгөөр Эрчим хүчний өндөр хэмнэлттэй амины орон сууцны иж бүрэн зураг төсөл, төсөв мэргэжлийн байгууллагаар гаргуулахад ойролцоогоор 10-12 сая төгрөг болно. Үүнийг иргэд гаргадаггүйгээс болж зураггүй байшин барих тохиолдол маш их байна. Бидний зүгээс та бүхэнд зөвлөхөд мэргэжлийн байгууллагын боловсруулсан нэг маягийн эрчим хүчний хэмнэлттэй амины орон сууцны зургийг сонгох нь шууд төлөх зардал бага байх бөгөөд тухайн байгууллагын зөвлөх үйлчилгээг авах нь маш оновчтой зөв арга юм.
Бүрэн цутгамал барилга нь нэмэлт дулаалга хийхгүйгээр шаардлага хангадаггүй. Термоблок- системийг ашигласнаар дулаан дамжуулалтын итгэлцэл нь 0.25 Ватт/м2К хүрдэг.
Цонх
Монгол Улсын шаардлага стандарт/MNS 5830:2009/-ыг хангасан 2 давхар хамгаалалт, аргон хий дүүргэсэн, уян зай баригчтай, LOW-E түрхлэгтэй тусгай зориулалтын шиллэгээтэй эрчим хүчний хэмнэлттэй хуванцар вакуум цонх байна.
Хаалга
Метал ган төмөр рамтай ОХУ-д үйлдвэрлэсэн хүйтэнд тэсвэртэй дулаалгатай хаалга байна.
Цонх болон хаалга, бусад ачаалал авах хэсгүүдэд арматурыг хүчитгэж өгнө. Арматурын гаргалгааг зургийн дагуу зөв тооцож хийсэн байх шаардлагатай.
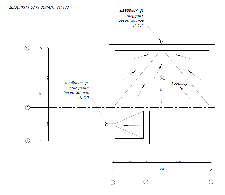
Дээвэр
Хучилт дууссанаар парпет болон дээврийн дулаалгын ажил хийгдэнэ. Парпетыг хийхдээ цутгах шаардлагагүй бөгөөд Полистрол блокоор хийх нь илүү оновчтой байдаг. Дээврийн дулаалгын ажлыг зурагт тусгасны дагуу хийж гүйцэтгэнэ. Иргэд дээврийн ажлыг хийхдээ битүүмжлэлийг маш их алдагдуулж хийдэг. Парпетны төмрийг борооны ус нэвчихгүй байхаар тооцож ам дарах байдлаар хийх шаардлагатай.
Уг байшингийн дээвэр нь модон дам нуруун дээр гипсэн хавтан, Ондутис А100 чийг тусгаарлагч 40мм, Эрдэс хөвөн дулаалга 100мм, OSB хавтан 18мм, 2 үе ам даруулж EPS дулаалга 200мм, OSB хавтан 18мм, Бетон тэгшилгээ 50мм, Геодавуу 500гр, Полимер мембран /LOGICROOF V-RP/, Геодавуу 500гр дээврийг зургийн дагуу хийж гүйцэтгэнэ.
Ингээд байшингийн цонх, хаалга, гадна фасад, дотор заслын ажлыг хийж гүйцэтгэх үлдэж байна. Бид дараагийн нийтлэлдээ гадна фасад болон дотор заслын ажлыг хэрхэн хялбар хийх аргыг хүргэх болно.
Уншигчдын бичсэн сэтгэгдэлд barilga.mn хариуцлага хүлээхгүй болно. Манай сайт ХХЗХ-ны журмын дагуу зүй зохисгүй зарим үг, хэллэгийг хязгаарласан тул та сэтгэгдэл бичихдээ бусдын эрх ашгийг хүндэтгэн үзнэ үү.