Пассив амины орон сууцны өртгийг 50 хувь бууруулах боломжтой

Пассив амины орон сууцны өртгийг 50 хувь бууруулах боломжтой




Бид эрчим хүчний хэмнэлттэй, пассив амины орон сууцны төлөвлөлт болон төсвийг цувралаар хүргэж байгаа билээ.


Энэ удаагийн дугаарт 58,92м2 сууцыг танилцуулах бөгөөд уг байшинг барихдаа хэрхэн өртгийг 50 хувь бууруулах талаар зөвлөгөөг архитектор Ч.Батцэнгэлээс тодрууллаа.





Пассив амины орон сууцыг манайхан өндөр үнэ гэж хараад байх шиг байна. Яагаад бид ийм төрлийн байшин барих ёстой вэ? 

Пассив барилга гэсэн нэр томьёолол, түүний норм стандарт нь барилга архитектурын салбарт хэдийнээ танигдан, одоо дэлхий даяар мэддэг болжээ. Энэ нь анх Герман улсад үүсэж хөгжсөн. Дэлхийн хаа сайгүй хойд болон өмнөд Америк, Европ, Ази, Африкт пассив барилга баригдсаар байна. 

Пассив сууцны дулаалга нь зүйрлэвээс өлгий бөгөөд дулааныг гадагшлуулахгүйгээр барьж байдаг. Юуны түрүүнд тав тухыг бүрдүүлдэг. Тухайлбал, өрөөний гадаргуунууд жигд дулаан байх, доторх агаарын нөхцөлийг тогтвортой, жигд бүрдүүлэх, температурын хэлбэлзэлгүй, сийгэлтгүй байх, агаар сэлгэлтийн систем нь тогтмол цэвэр, дулаан агаарыг өгч байдаг.

Мөн уур амьсгалын дулаанаас үүдэлтэй олон эрсдэлүүд хүн төрөлхтөнд тулгарч байна. Манай улсын хувьд хүлэмжийн хийн ялгарлаараа урдуур бичигддэг. Тиймээс үр хойчийнхоо төлөө ногоон шийдлийг сонгох шаардлага тулгарч байна. Пассив амины орон сууц барьснаараа СО2 ялгарлыг үлэмж хэмжээгээр бууруулж, байгаль орчныг хамгаалан байгалийн хязгаарлагдмал эх үүсвэр (нефть, байгалийн хий г.м)- ийг нөөцлөхөд тусалдаг.

Мөн Пассив сууцанд шаардлагатай эрчим хүчийг сэргээгдэх эрчим хүчээр хангах бүрэн боломжтой байдгаараа давуу талтай. Үүнээс гадна ашиглалтын явцад маш их хэмнэлтийг бий болгодог. Халаалтад эрчим хүч маш бага шаардагдана, цэвэр агаарыг хялбархан аргаар автоматаар хангана гэх мэт дурьдаж болох юм. Товчхондоо пассив бол ирээдүй. Таны үр хойчид өвлөгдөх үнэтэй үл хөдлөх болно. 

Одоо амины орон сууцны м2 - ын үнэ дундажаар 3 - 3,5  саятай байна. Тиймээс өртөг төдий чинээ өндөр гарахаар байна. Энэ өртгийг бууруулах арга бий юу? 

Амины орон сууцыг ердийн байшин, эрчим хүчний хэмнэлттэй, пассив гэсэн гурван төрөлд хувааж болно. Ердийн байшин бол өнөөгийн манайхны амьдарч байгаа сууцууд бөгөөд маш их дулаан алдагдалтай төдий чинээ хэрэглээний зардал нь ч өндөр гардаг. 

Байшин барих гэж байгаа иргэд уламжлалт арга буюу блок, тоосгоор барих нь хямд, өртөг багатай гэж бодсоор байна… 

Олон жилийн туршлагаас харахад  амины орон сууц барьж байгаа компани дундажаар  23-28 хувийн ашигтай ажилладаг. Ажиллах хүчний зардалд 22-26 хувийг зарцуулдаг. Үүнийг хар ухаанаар бодоод үзэхэд 45 хувь хүртэл хэмнэх боломжтой гэж харж болно. Өртгийг бууруулахын тулд дараах зүйлсд анхаарах хэрэгтэй. 

1. Амины орон сууц барих эхний алхам бол тухайн газрын геодиз буюу далайн түвшнөөс хэр өндөрт байгаа газарзүйн байршлыг тодорхойлуулах юм. Өндөржилтийг тодорхой болгосноор байшингийн суурь ямар түвшинд суух, налуу газрыг сууриар нь тэгшлэх үү, газраа ухаж тэгшлэх үү гэдгээ шийднэ. Дараагийн алхам бол геологи буюу тухайн хөрсийг шинжлүүлэх хэрэгтэй. Энэ хоёр шинжилгээн дээр үндэслэн өртөг багатай суурь хийж болох эсэхийг тодорхой болгох төдийгүй архитектор тооцоолол гарган зардлыг хэмнэх шийдлийг гаргах боломжтой юм. Хөрсийг тодорхойлохгүйгээр архитекторууд зураг төсөл гаргаснаар өртөг маш өндөр гардаг. 

2. Амины орон сууцаар дагнасан мэргэжлийн архитектор, инженерүүдээр зураг төслөө гаргуулах. Тэд олон жилийн туршлага дээрээ үндэслэн өртгийг бууруулах шийдлүүдийг тусгаж өгдөг. Нийт 7 төрлийн зураг гарна. Хамгийн эхнийх нь харагдах байдал буюу эскиз зураг, дараа нь барилга архитектурын зураг, бүтээцийн зураг гэх мэт … 

3. Өртгийг бууруулах нэг арга бол ажиллах хүчний зардлыг 50-60 хувь хэмнээд тухайн хүн өөрөө байшингаа барих явдал юм. Өөрөөр хэлбэл зайлшгүй мэргэжлийн хүн шаардагдах ажлыг бусдаар хийлгээд, үлдсэнг нь гэр бүлээрээ барьж болно гэсэн үг. Блок, тоосгоор байшин барихад, мэргэжлийн ур чадвар шаарддаг учраас ямар ч ойлголтгүй хүн барихад хэцүү. Тиймээс дэвшилтэт технологи, инновац шингэсэн пассив амины орон сууцад зориулсан лего шиг угсардаг хялбар технологийг сонговол гэр бүлээрээ барих боломжтой юм. 

Инновац шингэсэн материалын талаар тодруулмаар байна? 

Энгийн блок болон пассив байшинд зориулж үйлдвэрлэж байгаа блок нь шал өөр. Өөрсдөө барьж байгаа хүмүүсд алдаа гаргахгүйгээр пассив амины орон сууц барих боломжийг олгодгоороо давуу талтай. Ийм төрлийн материалуудыг дотоодод үйлдвэрлэж байгаа мөн  гаднын компаниудаас ч орж ирж байна. 

Манай улсада инновац шингэсэн 3-4 төрлийн блокууд бий. Үүнээс хамгийн тохиромжтой нь ICF термоблок бөгөөд  хүн өөрөө байшингаа барихад тохиромжтой болгож хөгжүүлсэн. Энэ нь яг л лего шиг өрөөд дараа нь арматурчлаад, бетон цутгадаг. Бетон цутгахдаа жижиг миксэрээр зуураад, хувингаар цутгах боломжтой учраас завал мэргэжлийн хүний шаардлагагүй юм. 

Энэ технологиор өөрсдөө байшин барьсан олон туршлага бий. 

Хөнгөн гэхээр газар хөдлөлтөд  хэр тэсвэртэй вэ? 

Арматур хом зангидаад, бүрэн цутгаж байгаа учраас бат бөх болно. Бид уламжлалт аргаар тоосго блокоо өрөөд гаднаас нь шавардаж дулаалдаг. Харин энэ технологийн хувьд лего шиг өрсөний дараа дотор нь цутгалтаа хийнэ. Эсрэг үйлдэл гэсэн үг. Ингэснээр мэргэжлийн алдаа гарахгүй гэсэн үг. 

Инновац шингэсэн материал, тоосго блокны үнийн зөрүү хэр байх вэ? 

Эрчим хүчний хэмнэлттэй барилга гэдэг нь зөвхөн сууриас хамаарахгүй. Шал, дээврийн дулаалга чухал. Маш өндөр хэмжээнд битүүмжлэлтэй байх шаардлагатай. Гэтэл үүнийг уламжлалт аргаар шийдэх нь өндөр зардалтай болдог. Манайхан тоосго, блокны тоо ширхгээр нь үнээ бодоод хямд гэж тооцдог нь алдаа юм.  Тоосгоор барьсан 34 - ын хана багадаа 35 см хөөс,  полистрол блок 25 см хөөс, евро блок 30 см - ын хөөсөөр дулаалж байж эрчим хүчний хэмнэлттэй байшингийн шаардлага хангаж байна. Харин инновац шингэсэн материал нь 32 см орчим зузаантай байна.  

Үүнээс гадна энгийн байшид хэрэглээний зардал өндөр гардаг. Жишээ нь энгийн байшин сардаа 4,2квт /тогны зардал багадаа 130 мянга.төг / халаана. Эрчим хүчний өндөр хэмнэлтэй барилгыг 1,2кв /30-40 мянга.төг/ дулаанаар халаадаг. Мөн том цонх дулаан байхад маш их дэмжлэг өгнө. Өөрөөр хэлбэл, нарны энергийг цахилгаантай хослуулж Hybrid байдлаар шийднэ гэсэн үг. Үүнээс гадна эрчим хүчний өндөр хэмнэлттэй барилга барьснаар 50 сая хүртэлх ногоон зээлд хамрагдах боломж бүрдсэн. Энэ мэт зөвхөн материалын үнэд гол анхаарлаа хандуулахгүйгээр цогцоор нь авбал үнийн дүн зөрүүгүй байна. 

Улсаас хэсэг айлуудыг нэгтгээд дэд бүтцийн асуудлыг шийдэх маягаар ажлууд хийгдсэн. Шинээр байшин барих гэж байгаа иргэд нэгдээд хороолол бий болговол энэ энэ хэмнэлтийг бий болгох боломжтой юу? 

100 өрх нийлээд нэг маягийн пассив байшин бариулаад хотхон бий болговол өртгийг шууд 50 хувь бууруулах боломжтой юм. Гэхдээ ажиллах хүчийг 50 хувь бууруулаад амьдрах гэж байгаа иргэн өөрөө оролцоотой байвал энэ бүрэн боломжтой. 

Жишээ болгож  100 өрхийн төлөөлөл 100 иргэн нэгдэж хамтдаа боловсруулсан 58,92м2 амины орон сууцыг танилцуулъя. 5 өдрийн турш хоорондоо ярилцаж өөрсдийн амьдралаас үүсэж буй хэрэгцээ шаардлага дээрээ тулгуурлан 2 унтлагын өрөөтэй 60м2 нэг маягийн амины орон сууц төлөвлөхөөр тогтож хүн бүр өөрийн саналаа тусгасан болно. 

Зохион байгуулалт

Суурь: 

Газрын хөрс, налуугаас хамаарч 40см өргөнтэй 60см гүн суухаар төмөр бетон шугаман суурь, Праймер хар цаас наахын өмнө бетон дээр түрхэнэ, Хар цаасан ус чийг тусгаарлагч /ТехноЭласт ЭПП/, 50мм зузаан EPS хөөсөн дулаалга төлөвлөсөн болно. Үндсэн нягтруулсан хөрсөн дээр 100мм төмөр бетон цементэн дэвсгэр, Полимер ус тусгаарлагч, 2үе ам даруулж XPS дулаалга 100мм дээр 50мм цементэн тэгшилгээ зургийн дагуу хийж гүйцэтгэнэ.


Дээвэр: 

Модон дам нуруун дээр гипсэн хавтан, Ондутис А100 чийг тусгаарлагч 40мм, Эрдэс хөвөн дулаалга 100мм, OSB хавтан 18мм, 2 үе ам даруулж EPS дулаалга 200мм, OSB хавтан 18мм, Бетон тэгшилгээ 50мм, Геодавуу 500гр, Полимер мембран /LOGICROOF V-RP/, Геодавуу 500гр дээврийгзургийн дагуу хийж гүйцэтгэнэ.


Ханын бүтээц: 

Тус барилгын үндсэн бүтээц бүрэн цутгамал бетон хийцийн ICF Герман технологийн термоблок байна. Термоблок- бүрэн цутгамал барилгын технологи нь АНУ, Канад, ОХУ зэрэг манай оронтой ижил цаг ууртай орнуудад 30 жилийн турш амжилттай ашиглагдаж буй барилгын систем юм. Уг блок нь 37 см зузаантай ханын бүтээц бөгөөд гадна талдаа 12 см EPS дотор талдаа 5см EPS байх ба голын бүрэн цутгамал бетонон хана 20 см зузаантай байна. Уг технологи нь ХБНГУлсын барилгын техникийн хүрээлэнгийн 2004 оны 7- р сарын 6-ны Z- 15.233 тоот гэрчилгээтэй. 


Эрчим хүчний тооцооны үзүүлэлт: Бүрэн цутгамал барилга нь нэмэлт дулаалга хийхгүйгээр шаардлага хангадгүй. Термоблок- системийг ашигласнаар дулаан дамжуулалтын итгэлцэл нь 0.25 Ватт/м2К хүрдэг. 

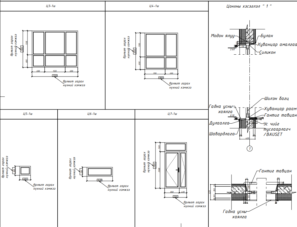
Цонх:

Монгол Улсын шаардлага стандарт/MNS 5830:2009/-ыг хангасан 2 давхар хамгаалалт, аргон хий дүүргэсэн, уян зай баригчтай, LOW-E түрхлэгтэй тусгай зориулалтын шиллэгээтэй эрчим хүчний хэмнэлттэй хуванцар вакуум цонх. Хаалга Метал ган төмөр рамтай ОХУ-д үйлдвэрлэсэн хүйтэнд тэсвэртэй дулаалгатай хаалга байна.



Холбоотой мэдээ