Эрчим хүчний хэмнэлттэй амины орон сууцны зөвлөгч архитектор
Ч.Батцэнгэл
Сүүлийн жилүүдэд зуслан лагерын газартаа хөнгөн араг бүтээцтэй А сууц барих сонирхолтой болсон. А сууц нь ихэвчлэн модон араг бүтээцтэй байдаг бөгөөд хагас давхар буюу дуплекс загвар нь оновчтой байдаг.
Тухайн А сууцыг хажууд нь өргөтгөл нэмж барихаас гадна террасийг давхар уялдуулан төлөвлөх нь зай талбай ихтэй олуулаа цуглах үед хүрэлцээтэй байдаг давуу талтай. Бидний та бүхэнд танилцуулж буй энэхүү загвар нь А сууцийг өргөтгөл сууцтай хослуулан ашиглалттай дээврийг хийн маш оновчтой төлөвлөж өгсөн байна. 
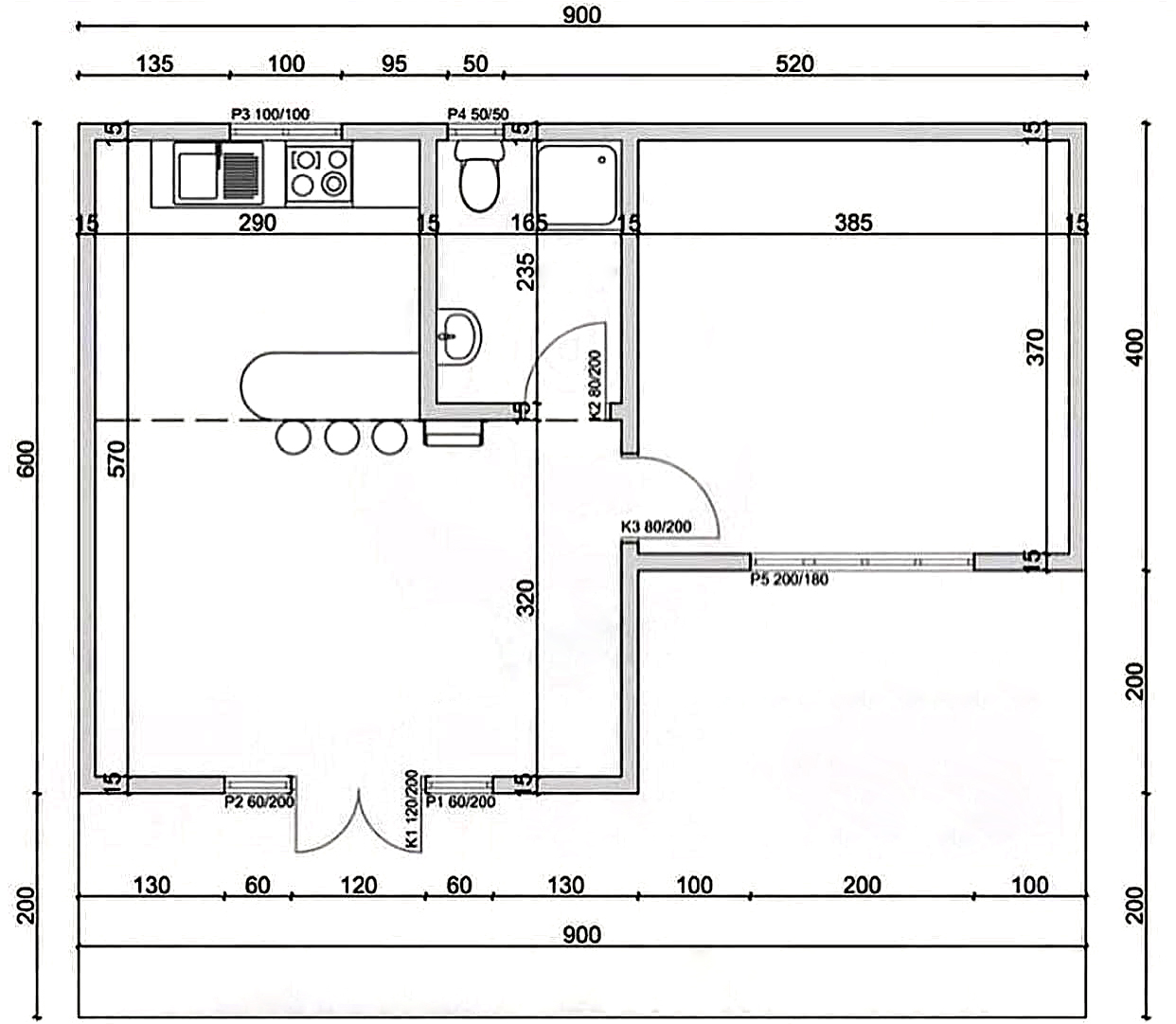
Үндсэн А сууцыг 5х6 харьцаатай 30м2 байхаар тооцож, ариун цэврийн өрөө, гал тогоо төлөвлөж өгсөн. Өргөтгөл хэсгийг 4х3 харьцаатай 12м2 байхаар төлөвлөсөн байна. Өргөтгөл хэсгийн дээврийг ашиглалттай байхаар тооцож, даац болон ашиглалттай дээврийн технолгиор хийнэ. Ашиглалттай дээврийг хийх олон аргачлалууд байдаг. Та бүхэн тухайн угсралтын мужаантайгаа зөвшилцөж хамгийн өртөг багатай байх найдвартай шийдлийг сонгох нь зүйтэй юм.
Иргэд аливаа байшин сууц барихдаа бохирын асуудлыг хамгийн эхэнд шийдэх нь зардал төсөв мөнгө хэмнэх дахин ажил болохгүй байдаг гэдгийг тэр бүр ойшоодоггүй. Тэгэхээр бүгдээрээ энэхүү загварыг барих төлөвлөгөөгөө боловсруулъя. Хийгдэх ажлын дараалал болон жагсаалтыг гаргана.
- План зургийг гэр бүлийн бүх гишүүдтэй ярилцаж хүн бүрийн санааг тусган эцсийн байдлаар хөдөлгөөнгүй байхаар батлах
- Доторх зохион байгуулалтыг хийхдээ маш нарийн ярилцаж ширхэг бүрээр нь төлөвлөх нь алдаагүй байхаас гадна маш зардал хэмнэх эхлэл болдог гэдгийг битгий мартаарай.
- Суурийн ажлыг эхлэхээс өмнө бохирын асуудлыг шийдэх
- Тухайн барилгаас бохиртой холбогдох гаргалгааг тооцож 1-1,5м зайтай холбогдох уртын зайг авна. Уртын зай гэдэг нь барилгаас бохирын септик систем суух зайг хэлнэ. Гаргалгааны шугамын нүхийг ухахдаа 0,6м-ын өргөнтэй 1,5м-ийн гүнтэй байхаар тооцож ухна. Гаргалгааны зай 1,5м гэж тооцвол 1,5м-ээс үргэлжлүүлэн септик суух нүхний өргөн 1,5м, урт нь 5м байна. Септик суух гүн нь 2,8м байх нийт 5м урт нүхний эхний 3м нь 2,8м гүнтэй байх ба сүүлийн 2м нь 4м-ийн гүнтэй байхаар нүхийг ухна. Эхний 3м-ын урттай 2,8м гүнд септик систем суурилна. Сүүлийн 2м-ын урттай 4м-ын гүнд шүүрүүлэх худаг сууна.
- Суурийн ажлыг хийх
- Суурийн ажлыг хийхдээ тухайн газрын хөрсний нөхцөлөөс хамааран суурийн шийдлийг боловсруулна.
- Зуслан лагерийн газрууд намагтай хөрсний ус ихтэй газар байрладаг ийм тохиолдолд гадсан суурийг сонгох нь илүү оновчтой.
- Хөрсний ус багатай борооны ус их орж ирэхээргүй газар нил суурь хийх нь илүү оновчтой байдаг. Суурийн ажлыг мэргэжлийн хүмүүсээр хийлгэх нь үр дүнтэй зардал мөнгө хэмнэж чадна.
- Каргазны ажлыг хийх
- Модон араг бүтээцтэй хийхээр төлөвлөсөн тохиолдолд үндсэн карказыг заавал хатаалгатай модоор хийнэ. Хатаалгагүй модоор хийсэн тохиолдолд гажих, ан цав үүсэх гээд олон бэрхшээлүүд тулгардаг.
- Төмөр карказ хийхэд хэдэн төрлөөр хийж болно. Хүмүүс ихэвчлэн С төмөр карказ болон хөндий квадрат төмрийг ашигладаг. С төмөр карказаар хийж байгаа тохиолдолд зургийг нарийн гаргаж С төмөр карказны үйлдвэрт захиалан үйлдвэрлүүлж угсарч болдогоороо давуу талтай ч өртөг өндөр болох нь бий. Хөндий квадратаар хийвэл сайн гагнуурчин байхад болно. Хөндий квадратаар хийж байгаа тохиолдолд шууд газар дээр нь угсрах боломжтой.
- Ханын дүүргэлтийн ажил хийх
- Ханыг ихэвчлэн OSB хавтангаар хийдэг. Энэ нэг талдаа карказыг бэхлэх хүчитгэх арга болж өгдөг. Ханын ажлыг хийхдээ карказын дотор талаас OSB хавтанг карказтай шрүфдэж тогтооно. Дүүргэлтийн үеийг эрдэст хөвөнгөөр хийх нь илүү оновчтой. Энэ дуу чимээ тусгаарлахаас гадна, намар орой болтол лагер дээрээ байх боломжийг бүрдүүлнэ. Хүмүүс OSB хавтан дээрээ шууд доторлогооны рек эсвэл гипсэн хавтанг тогтоон хийдэг энэ нь маш буруу юм. Эхлээд OSB хавтан дээрээ 1см-ын дранк хадаж дотор чийг ус тусгаарлагчийг 1см-ын дранкаар даруулан хадна. Үүний дараа доторлогооны рек юм уу гипсэн хавтанг тогтооно. Чийг ус тусгаарлагчид агаарын зай үлдээж өгсөнөөр мөөгөнцөртөх чийг үнэртсэн орчинг бүрдүүлэхгүй байж чадна. Мөн гадна OSB хавтанг хийхдээ гадна чийг ус тусгаарлагчийг хийж мөн ижил агаарын зайг үлдээх дүрмийг мөрдөнө.
- Дээврийн ажлыг хийх
- Гадна OSB хавтанг хийхдээ гадна чийг ус тусгаарлагчийг заавал хийнэ. Үүний дараа дээврийг хийхдээ ямар ч төрлийн дээврийн материалыг ашиглан хийж болно. Илүү зардал багатай хийе гэвэл черпецин дээврийг сонгох оновчтой.
- Өргөтгөл хэсгийн дээврийг ашиглалттай дээвэр хийж байгаа тохиолдолд мембран дээврийн технологийг ашиглах нь зардал өндөр ч илүү үр дүнтэй болно.
- А сууцны хувьд гадна ханын налуу хэсэгт фасад хийгддэггүйгээрээ давуу талтай байдаг. Шууд дээврийн материалаараа хийгддэг.
- Цонх хаалга хийх
- Цонх хийхдээ ердийн хуванцар ваакуум цонх өргөн ашигладаг. Энэ зуны улиралд барилга дотор байх боломжгүй нөхцөл байдлыг үүсгэдэг. Цонх өртөг зардал багатай хийе гэвэл өөрсдийн нөөц бололцоог ашиглах нь үр дүнтэй болно. Цонхны зөвхөн шилэн багцыг захиалан үйлдвэрлүүлж өөрсдийн хийсэн модон раманд суурилуулах нь зардал багатай. Шилэн багц нь аргон хийтэй Low-E түрхлэгтэй, уян зай баригчтай нарны хэт ягаан туяанаас хамгаалсан технологитой цонх байна. Ийм шилэн багц нь зуны халуун өдрүүдэд тухайн барилга дотор байх тоотай цөхцлийг танд бүрдүүлж өгнө.
- Хаалга нь төрөл бүрийн сонголттой байгаа учраас хэрхэн сонгохыг танд үлдээе.
- Гадна фасад, дотор заслын ажил хийх
- Фасадыг хийхдээ сайдинг ашиглах нь илүү оновчтой. Сайдинг хийхдээ хямдхан биш чанартай өнгө үзэмж сайтай сайдинг сонгох зүйтэй юм. Манайхан гадна фасад хийхдээ зардал хэмнэх гээд хямдхан чанар муутай сайдинг сонгох тохиолдол их байдаг. Энэ нь тухайн барилгыг үнэ цэнэгүй харагдуулахаас гадна насжилтгүй болдог. Тэгэхээр та бүхэн чанартай фасадны материал сонгох хэрэгтэй. Ингэж байж үр дүн харагдах байдал нь үнэ цэнтэй харагдана.
- Дотор засал хийхдээ шууд рек модоор хийх нь элбэг байдаг. Энэ нь өртөг өндөр ч мод үнэртсэн эко орчинг бий болгож өгнө.
- Гипсэн хавтангаар хийж байгаа тохиолдолд угаадаг эмульс эсвэл TIKKURILA-ын эмульс маш гоё болгож өгдөг. Дотор талын заслын будаг, эмульс хийхдээ эрүүл мэндэд хоргүй янз бүрийн үнэргүй чанартай брэндийг материалыг ашиглах нь үнэ цэнтэй таатай орчинг бүрдүүлдэг гэдгийг санаарай.
Нийтдээ хийх ажлын дараалал ийм байна. Энэ дарааллыг дотор нь задлан нарийвлан тоо ширхэг материалын түүврийн гаргаж хичнээн төгрөгийн төсөв хэрэгтэйг гаргана.

4х6 ХЭМЖЭЭТЭЙ ДУПЛЕКС КЕМПИЙН ХИЙЖ ГҮЙЦЭТГЭХ ЗАРДЛЫН ТӨСВИЙГ ЖИШЭЭ БОЛГОН ОРУУЛЖ БАЙНА
Төсөвт өртөг: 44 823 469 төгрөг
/ Дөчин дөрвөн сая найман зуун Хорин гурван мянга дөрвөн зуун жаран есөн /
ТӨСӨВТ ӨРТӨГИЙН ТОВЧОО
№ | Зардлын нэр | Төгрөг |
1 | Ажиллах хүчний зардал | 9,300,000₮ |
2 | Материал | 26,747,600₮ |
3 | Тээвэр | 1,200,000₮ |
4 | Машин ашиглалт | 900,000₮ |
| Шууд зардлын дүн | 38,147,600₮ |
5 | Нэмэгдэл зардал /72,3%/ | |
6 | Ашиг / 15% / | 5,938,775₮ |
7 | НӨАТ /10%/ | |
8 | Магадлашгүй ажил /2% / | 737,094₮ |
9 | Бусад нэмэлт зардал | |
4*6 ХЭМЖЭЭТЭЙ ДУПЛЕКС КЕМПИЙН ГҮЙЦЭТГЭХ ЗАРДЛЫН ТООЦОО
№ | Хийж гүйцэтгэх ажлын жигсаалт | хугацаа | Ажиллах хүчний зардал /төгрөг/ | Тайлбар |
1 | Суурийн ажил | 4 хоног /3 хүн / | 2,800,000₮ | |
2 | Угсралт | 9 хоног / 5 хүн / | 3,700,000₮ | |
3 | Гадна, дотор заслын ажил | 5 хоног /5 хүн/ | 2,800,000₮ | |
3 | Тоног төхөөрөмжийн ашиглалтын зардал | 9 хоногт / 2 хүн / | 900,000₮ | |
НИЙТ | 10,200,000₮ |
МАТЕРИАЛЫН ЗАРДАЛ
№ | Матриалын нэр | Тоо ширхэг | Нэгжийн үнэ | Нийт үнэ |
1 | Суурийн материал | 24м2 | 250,000₮ | 6,000,000₮ |
2 | Төмөр карказ (5х10) | 138м | 27,800₮ | 3,836,400₮ |
3 | OSB хавтан | 18ш | 75000₮ | 1,350,000₮ |
4 | Банз хучилт | 18ш | 15,000₮ | 270,000₮ |
5 | Чийг ус тусгаарлагчийн рам (5х2) | 20ш | 8,500₮ | 170,000₮ |
6 | Гадна чийг ус тусгаарлагч | 1 боодол | 150,300₮ | 150,300₮ |
7 | Эрдэст хөвөн дулаалга | 8 боодол | 109,000₮ | 872,000₮ |
8 | Дотор чийг ус тусгаарлагч | 1 боодол | 111,900₮ | 111,900₮ |
9 | Дотор рек | 65,66.5м2 | 23,000₮ | 1,510,000₮ |
10 | ZINC /Гадна фасад, дээврийн төмөр/ | 60м2 | 50,000₮ | 3,000,000₮ |
11 | Булан | 30 ширхэг | 12,000₮ | 360,000₮ |
12 | Ус чийг тусгаарлагч грүнт, лак | 18л | 38,500₮ | 693,000₮ |
13 | Багс | | | 48,000₮ |
14 | Бэхлэгч шрүп | | | 300,000₮ |
15 | Гэрэлтүүлгийн матриал | | | 560,000₮ |
16 | Цахилгааны материалын зардал | | | 820,000₮ |
17 | Цонх, хаалга | | | 6,696,000₮ |
НИЙТ | 26,747,600₮ |




