НЭГ ба ХОЁР ДАВХАР СУУЦНЫ ДАВУУ болон СУЛ ТАЛ

НЭГ ба ХОЁР ДАВХАР СУУЦНЫ ДАВУУ болон СУЛ ТАЛ



Ч.Батцэнгэл Эрчим хүчний хэмнэлттэй амины орон сууцны зөвлөгч архитектор 



Айл өрх өөрсдийн шаардлагатай орон зайг оновчтой тодорхойлж зөв байршуулах аргаар маш сайн төлөвлөж чадвал анх төсөөлж байсан өртгөөсөө 42 сая төгрөг хэмнэж болдог гэдгийг баталж чадсан хувийн амины сууцны төлөвлөлтийн арга дээр тулгуурлан энгийн байдлаар ойлгуулахыг хичээх болно. 

Амины орон сууцаа өөрөө барихаар төлөвлөж байгаа хүн хамгийн түрүүнд хашааныхаа зай талбайг хэмжиж байшингаа хаана, хэд хэдийн харьцаатай талбайд байрлуулах талаар тооцож, үндсэн метр квадратаа тодорхойлох арга нь хамгийн зөв юм. 


Иргэд байшин барихаар бодож эхлэхдээ 6х8, 8х10 гэх мэтээр нэг хэмжээсээр төсөөлж амьдрал дээр түүнийгээ шууд утгаар хэрэгжүүлдэг нь буруу жишиг болчихоод байна. Үүнийг өөрчлөх арга барилд суралцах, түүнийгээ хөгжүүлж, барилгын материалын дэвшилтэт технологийн давуу талуудыг ашиглах цаг нь болсон. 

Дээрх амины орон сууцны төлөвлөлтийг хэрхэн боловсруулсан аргыг нэг бүрчлэн нарийвчлан тайлбарлан хүргэе.

Нэг болон хоёр давхар сууц нь сул талыг хүснэгтээр харьцуулан харуулахыг хичээлээ үүнийг та бүхэн цааш нь үргэлжлүүлэх байдлаар давуу болон сул талыг жагсаах боломжтой. Мөн байшингаа барихаар төлөвлөж байгаа бол барилгын материалыг ч мөн адил дараах хүснэгтийн адилаар харьцуулан судлах хэрэгтэй.

НЭГ ДАВХАР СУУЦ


ХОЁР ДАВХАР СУУЦ


Бага өртгөөр барих боломж өндөр


Бага өртөгөөр баригдах боломж бага


Бүх орон зайгаа бүрэн ашиглаж төлөвлөх боломж өндөр


Шатны орон зай болон коридорын зай төлөвлөгдөх шаардлагатай


200м2-300м2-тай бол газрын хэмжээ бага байж болохгүй


Газрын хэмжээ, орон зай бага бол 2 давхар төлөвлөнө  


Өөртөө шаардлагатай орон зайг төлөвлөсөн байдаг учраас тоосонд дарагдсан булан тохой байдаггүй


Бодит амьдрал дээр 2 давхартаа маш бага цаг хугацааг өнгөрөөсөн байдаг


60м2 байшинд 4-6 ам бүл


2 давхар байшин төлөвлөж байгаа тохиолдолд хамгийн багадаа 120м2 байх шаардлагатай болдог


Загвар дизайны хувьд хязгаарлагдахгүй


Загвар дизайны хувьд хязгаарлагдахгүй


Барилга угсралтын үе шатанд бага зардлаар шийдэх боломж өндөр


Барилга угсралтын үе шатанд бага зардлаар шийдэх боломж бага


Суурийн ажлын зардал төвөгшлөөс хамааран харилцан адилгүй ч бага гарах боломж өндөр


Суурийн ажлын зардал төвөгшлөөс хамааран харилцан адилгүй ч бага гарах боломж бага


Богино цаг хугацаанд ашиглалтад оруулах боломж өндөр


Богино цаг хугацаанд ашиглалтад оруулах боломж бага


Өртөгийг бууруулах шийдэл боловсруулахад хялбар байдаг


Өртөгийг бууруулах шийдэл боловсруулахад төвөгтэй байдаг


Том цонхтой төлөвлөж болно


Том цонхтой төлөвлөж болно







Нэг давхар сууцны төлөвлөлтийн жишээ 

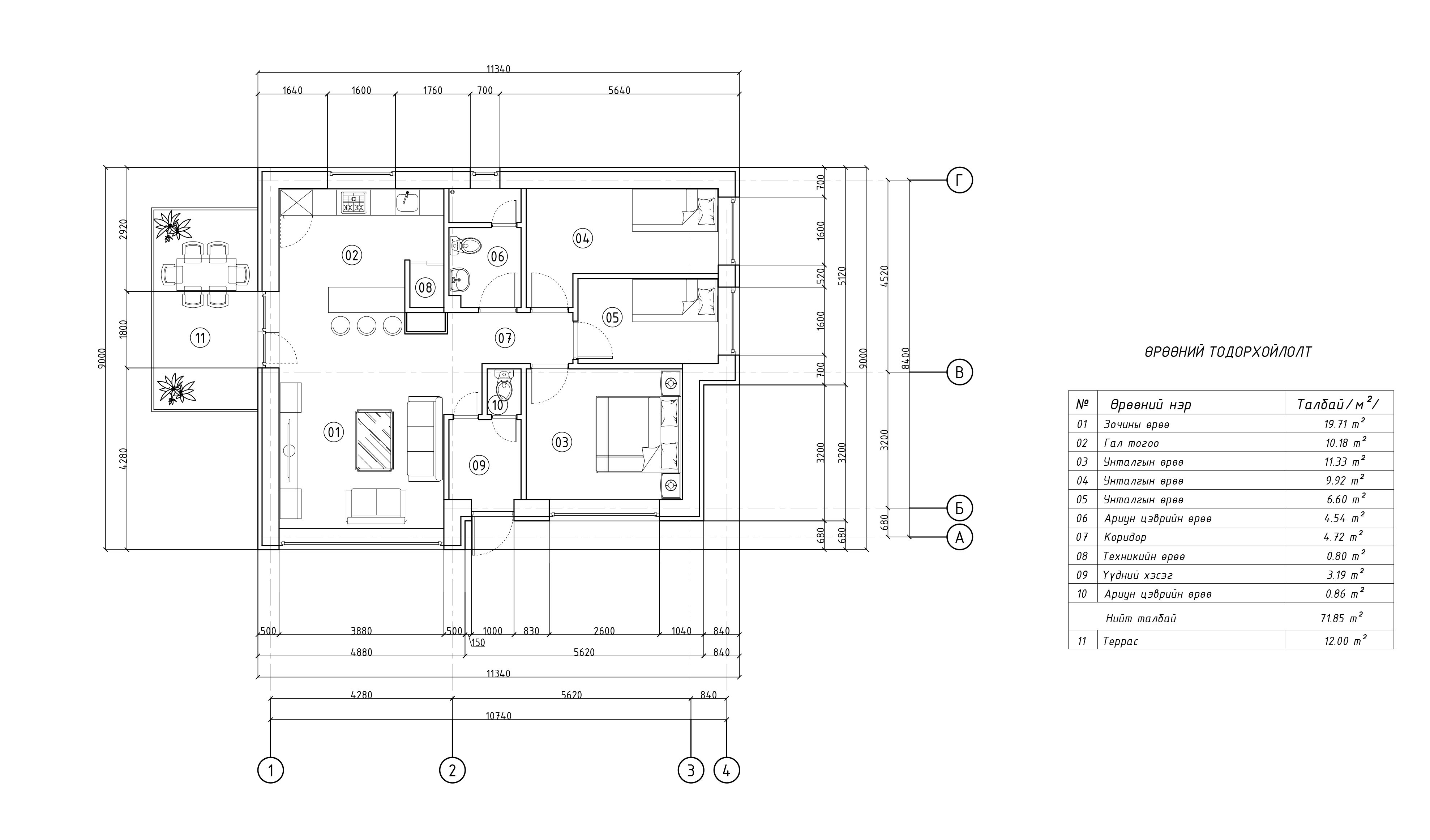
Зочны өрөө: Өргөн нь 4м, урт нь 5м нийт 20м2 орон зайг төлөвлөсөн. Тухайн орон зайг төлөвлөхдөө одоогийн нийтийн орон сууцны зочны өрөөнөөс том байхаар тооцсон. 

Гал тогоо: Гол тогоог зочны өрөөний эсрэг талд байхаар төлөвлөж, өргөнийг нь 4м, уртыг нь 3м-тэй байхаар тооцож зочны өрөөтэй холбож байрлуулсан байна.


Унтлагын өрөө 1: Тухайн унтлагын өрөө нь аав ээжийн унтлагын  өрөө байх бөгөөд өргөн нь 3м харин өрөөний урт нь 3,8м байна. Өрөөнд том унтлагын ор, шкаф, ханын ширээ зэргийг төлөвлөсөн.


Унтлагын өрөө 2: Тухайн унтлагын өрөө нь бусад унтлагын өрөөнөөс жижиг төлөвлөгдсөн учраас айлын отгон хүүхдийн өрөө байх бөгөөд өргөн нь 2,123 м харин өрөөний урт нь 3,4 м байна. Өрөөнд хүүхдийн ор, шкаф, ханын ширээ зэргийг төлөвлөсөн. Хэрвээ гурван хүүхэдтэй бол давхар хүүхдийн ор төлөвлөх боломжтой.


Унтлагын өрөө 3: Тухайн унтлагын өрөө нь ууган хүүхдийн унтлагын  өрөө байх бөгөөд өргөн нь 4,6 м харин өрөөний урт нь 2,8м байна. Өрөөнд хүүхдийн ор, шкаф, ханын ширээ зэргийг төлөвлөсөн.

Ариун цэврийн өрөө: Ариун цэврийн өрөөний өргөн нь 1,7 м, урт нь 2 м байх бөгөөд банны урт 1,7м байна. Ариун цэврийн өрөөнд банн, угаалтуур, суултуур, автамот угаалгын машин зэргийг төлөвлөсөн.


Үүдний өрөө: Тухайн амины орон сууцанд үүдний өрөө буюу гонх төлөвлөж өгсөн. Гонх нь бидний мэдэх хэллэгээр бол үүдний табар юм. Өвлийн улиралд гаднаас хүйтэн агаар шууд барилгад оруулахгүй байх үүрэгтэй төлөвлөгдсөн. 


Техникийн өрөө: Техникийн өрөөний өргөн нь 0,8 м харин урт нь 1,7 м төлөвлөсөн. Эрчим хүчний хэмнэлттэй амины орон сууцны техникийн өрөөнд 200-360 литр цэвэр усны нөөцийн сав, вакум насос, бойлуур, агааржуулалтын дулаан солилцууртай төхөөрөмж зэргийг төлөвлөсөн.


Коридор: Коридорын орон зайг урьдчилан төлөвлөх гэж яарсаны хэрэггүй учир нь тухайн төлөвлөх арга нь бусад өрөөгөө байрлуулах явцад автоматаар төлөвлөгддөг онцлогтой байдаг.

План: Дээрх дөрвөлжин хэмжээсүүдийг анх төлөвлөхдөө шугамны 1см-ыг 1м гэж тооцоод дөрвөлжин дүрс болгон хайчилж аваад хүссэн байрлалд эвлүүлдэг тоглоом шиг зөөж байрлуулах аргаар төлөвлөсөн. Ингэж төлөвлөх нь маш сонирхолтой бүтээлч хандлагыг төрүүлдэг. Энэ үйл ажиллагаандаа гэр бүлийн бүх гишүүдээ оролцуулбал хөгжилтэй  халуун дулаан уур амьгал бүрдүүлэн өөрсдийн амьдрах хаусаа ямар ямар өрөөтэй хичнээн м2 байх вэ гэдгийг маш оновчтой тодорхойлж чадна. Хамгийн оновчтой хэсэгт байрлуулж тогтсоны дараа үндсэн ханын бүтээцийн хэсгийг дүрсний гадна талд байхаар зурж, хаалга, цонхны зайг гаргаж өгсөнөөр план зургийг зурах даалгавар болж өгдөг. Ийм байдлаар захиалагч төсөөллөө даалгавар болох хэрэгтэй. Үүний дараа мэргэжлийн хүнд хандаж зуруулахад хялбар байх болно. 

План зургийг автокад /autocad/ программ дээр мэргэжлийн хүнээр зуруулах явцад бага зэргийн өөрчлөлт орохоос гадна зарим хучилтын хэсгүүдэд дотор ханыг даацын хана болгох шаардлагатай бол даацын хана болгон төлөвлөх мөн зүрхэвч, даацын багана гэх мэт зүйлс мэргэжлийн талаас хийгддэг учраас архитектор хүнтэй зөвшилцөж хийх нь үр дүнтэй байдаг.

Харагдах байдал буюу 3D хийхдээ энгийн фасадны шийдэлтэй байх хувилбараас эхлээд оновчтой экстерьер дизайны шийдлийг гаргуулах бүрэн боломжтой. Та өөрийнхөө хүсэж байгааг илүү бодит болгохын тулд Google SketshUp программыг ашиглах нь танд ойлгоход илүү амархан, тохиромжтой гэдгийг бидний зүгээс зөвлөж байна. Тухайн төсөөллөө хэрхэн бодит ажил болгож байгаа аргаасаа үргэлжлүүлэн харагдах байдал дээр ажилласан байдлыг харуулъя.


Гадна харагдах байдлын дизайн буюу экстерьер дизайн нь цулгай хийцлэлийг фасадны ажил дээр ашиглах тохиромжтой дизайны төлөвлөлттэй тохиолдолд илүү тохиромжтой байдаг. Харин энэ төлөвлөлтийн хувьд гадна фасад нь ердийн хийцтэй, хүмүүсийн жил бүр барьдаг байшингийн гадна фасадны хийцлэл нь ихэвчлэн EPS хөөсөнцөр дулаалгатай хийгдэж байгаа тохиолдолд цулгай хийхээсээ илүүтэй цонх болон хавтгай дээврийн дээд хэсгийн жижиг хана буюу парпет-ны ирмэгээр мөн өөр тохиромжтой хэсгүүдээр хөмсөг, гоёл маягийн хийцлэл хийж өгөх нь оновчтой гэдгийг харагдах байдлын дараах зургуудын ажилбаруудаас харж болно. 

Харагдах байдал дээр ажиллахдаа хамгийн түрүүнд барилгын материалын үндэсний үйлдвэрлэгч компаниудын бүтээгдэхүүнийг ашиглан хийхийг зорих нь оновчтой бөгөөд зардал хэмнэх боломжууд бүрдэж өгдөг. 

Харагдах байдал дээр эцсийн байдлаар хөдөлгөөнгүй, дахин өөрчлөлт байхгүй болсон тохиолдолд 3D рендер уншуулах ажил хийгдэнэ.

Харагдах байдал дээр ажиллаж дууссаны дараа дотор тал буюу интерьер дизайн гээд тусдаа шинжлэх ухаан болон хөгжсөн зүйлийг бүхэлд нь ашиглахгүй ч гэсэн өөрсдийн амьдралд хэрэг болохуйц тавилга мөн дотор заслийн шийдлийг гаргуулж болно.

Нэг давхар амины орон сууцны төлөвлөсөн энэ арга мөн үргэлжлэх процесоос та бүхэн өөрсдийн төсөөллөө бодит болгох эскиз зураг буюу анхны загвар зургийн үе шатыг бага ч болов ойлгож авсан гэж найдаж байна. Тухайн төлөвлөлт нь анх төсөөлөхдөө гурван унтлагын өрөөтэй хувийн сууц 100м2-аас бага төлөвлөгдөхгүй гэсэн ойлголтийг бүрэн өөрчилж 72м2-д багтаан төлөвлөсөн байгааг та дахин нэг нягтлаад үзээрэй. 


Одоогийн байдлаар зах зээл дээр эрчим хүчний хэмнэлттэй амины орон сууцны 1м2 үнийг дундаж үнэ 2,8 сая төгрөг байна. Өмнө нь иргэд 100м2-аас доош 3-н унтлагын өрөө багтдаг гэж үздэг байсан хандлагатай 72м2-ыг харьцуулбал 28м2 шаардлагагүй орон зайг хэмнэсэн байна. Үүнийг одоогийн дундаж өртөгөөр бодож үзэхээр 78,400,000 төгрөг бодитоор хэмнэсэн байна. Ийм аргаар төлөвлөлтөө улам илүү оновчтой болгож чадсанаар гурван унтлагын өрөөтэй амины орон сууцыг 65м2-д багтаасан байна.

Нэг давхар барилгын давуу тал бол зардал хэмнэх боломжууд байгаагаас угсрах өрөх хаших хийцийг хялбарчлах байдлаар нэг маягийн зураг төслийн дагуу хэв хашмал захиалан үйлдвэрлүүлж захиалагчийн газар дээр нь байшин үйлдвэрлэх боломжтой болгон боловсруулж болдог байна.

Үргэлжлэлийг Барилга МН сэтгүүлийн 145 дугаараас уншина уу. 

Холбоотой мэдээ