Өмнөх дугаарт дурьдсанчлан амины сууцыг барилгын үндсэн болон туслах чанарын хийц эдлэл, бусад дотор инженерийн шугам сүлжээний системээс хамааруулан төлөвлөх нь сэдвээр энэ удаагийн зөвлөмж нийтлэлээ үргэлжлүүлье.
Юуны түрүүнд урьд үзсэн төлөвлөлтүүд нь ерөнхий нийтлэг стандарт, тавилга, тоног төхөөрөмжийн онцлог хэрэгцээгээс үүдэн гарч байгаа ч эцсийн дүндээ барилгын хийц эдлэл ялангуяа дамнуу, хучилтын алхам, тэднийг хийсэн материалын онцлогоос шалтгаалж байдаг.
Өнөөдөр манай зах зээлд хамгийн нийтлэг хэрэглэгдэж байгаа хучилт, дам нуруу нь модон буюу бүтэн дүнз эсвэл наамал дүнз, зангидсан модон ферм, төмөр бетон угсармал стандарт хучилтын хавтан, цутгамал хучилтын хавтан, төмөр хийцээр зангидсан фермүүдийг түлхүү ашиглаж байна. Сонирхуулахад модон дам нурууны хамгийн их алслалт 72 фийт буюу 21,9 метр байдаг бол ердийн ган дам нурууны байж болох хамгийн урт хэмжээ нь 75,0 метр хүртэл байж болох тооцоо байдаг ажээ. Амины сууц гэлтгүй барилга байгууламжийн хучилт, дам нурууны хэсэг нь мэргэжлийн инженерийн тооцоо судалгаа, зураг төсөлтэй байж гүйцэтгэх шаардлагатай тул стандарт алхамуудтай буюу 6 хүртэл метрийн алслалтай ердийн хийцлэлтэй амины сууц сонирхож буй нь цаашаа нийтлэлээ үргэлжлүүлэхийг хүсье. Амины сууцны хамгийн их талбай шааардлагатай хэсэг бол зочны өрөө байдаг. Хэрэв та зочны өрөөнийхөө хучилт, дам нурууны шийдлийг олсон бол бусад өрөөний шийдэлд цаг зарахгүй гэсэн үг.
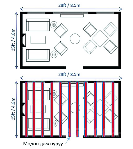
Өмнөх дугаарт үзсэн хамгийн том стандарт зочны өрөө 8,5х4,6 байсан хэрвээ энэ өрөөнд хучилтыг төлөвлөнө гэвэл бид 8,50 хэсэгт дам нуруу эсвэл хучилтын тулгуурууд сууна гэж үзэх ба харин 4,60 талд алслалт байх нь байна гэх мэтээр хучилтыг төлөвлөнө. Өөрөөр хэлбэл тэгш өнцөгтийн урт талд нь хучилт, дам нурууны суух хэсгүүдийг төлөвлөнө. (Зураг-1)
Дээрх тохиолдолд өрөөний хэмжээ нь хучилтын хийцлэлийг шийдэж байгаа ч нийт барилгын хэмжээнд харвал бас өөр шийдэлтэй байж болно. Зочны өрөөний урд талд төлөвлөлтөөр 1,40 өргөнтэй хонгилын өрөө төлөвлөгдсөн байна гэж үзье. Энэ тохиолдолд хэрэв барилгын даац авах боломжтой бол угсармал төмөр бетон хучилт тавих нь илүү эдийн засгийн хувьд хэмнэлттэй. (Зураг-2)

Нэг зүйл анхааруулахад барилгын зориулалт, ачаалал, алслалын хэмжээ нэмэгдэх бүрд дам нурууны өндөр мөн нэмэгддэг. Жишээ нь таны төлөвлөсөн байшинд 5,98 метр алслалд хэрэв дам нурууг 30 см, 30 см-ийн алхамтай тавьлаа гэж үзэхэд 71 мм х 248 мм харьцаатай модон дам нуруу шаардлагатай бол 8,11 метр алслалд мөн адилхан алхамтай байхад 71 мм х 354 мм хэмжээ бүхий хөндлөн огтлолтой дам нуруу шаардлагатай болох нь. Энэ нь зөвхөн модон дам нуруу биш ган төмөр дам нуруу, төмөр бетон дам нуруунд ч хамааралтай ойлголт юм. Хэрэв материалын өндрийг багасгах шаардлага гарвал дам нурууны хоорондох алхмыг ойртуулах ба энэ нөхцөлд тооцооны үндсэн дээр хийж гүйцэтгэх нь зүйтэй юм.
Мөн нэг түвшинд олон төрлийн хучилтын систем хийхээс зайлсхийх хэрэгтэй ба нэг төрлийн хучилт хийх байсан ч эсрэг чиглэлтэй хийх зохимжгүй. Учир нь газар хөдлөлтийн үед нэг түвшний хучилт өөр өөр хугацаа, нөхцөлд эвдэрч барилгын бүрэн бүтэн байдалд аюул учруулах магадлалтай. ( Зураг 3, 4 )
Мөн амины сууц барьж байгаа хүмүүст нэг нийтлэг алдаа байдаг нь эхлээд амины сууцныхаа төлөвлөлтийг хийгээд барьж байх явцдаа хучилт, дам нуруу барилгын хол алслалтай бүтээцийн асуудлаа шийдэх гэдэг явдал.
Тиймээс юуны түрүүнд ажлын зураг төслөө гаргаж сайтар төлөвлөх нь зүйтэй ба ийм боломжгүй бол аль болох эхний ээлжинд стандарт хэмжээгээр барилгаа төлөвлөх нь хойшид гарах үр дагавараас сэргийлнэ.
Энэхүү хэмжээсүүдийг 1-6,0 метр хүртэл тэгш хуваалттай тоонуудыг ойлгох ба модон дүнз, брусс, ган хийц эдлэл, төмөр бетон хучилт гэх мэт эдлэлүүд 0,8, 1,2 –ээс 5,8, 6,0 метр гэх мэт хэмжээсүүдтэй үйлдвэрлэгддэг. Хэдийгээр ган төмөр, модон хийц эдлэлүүдийг уртын дагуу аваад ямар ч хэмжээсд хувааж хэрэглэж болох авч анхнаасаа стандарт бус төлөвлөснөөс хаягдал их гарч төсөвт өртөг өсөх шалтгаан бас болдогийг анхаарах нь зүйтэй.
Иймээс зарим нэг стандарт хучилтын материалуудын хэмжээг жишээ болгон оруулъя. Энэхүү хэмжээг зөвхөн 2 давхар хүртэл амины орон сууцны барилгад хэрэглэх боломжтой гэдгийг сануулах нь илүүц байх.
1.Ган дам нурууны алслал сонгох жишээ хүснэгт
Тайлбар: Хөндлөн огтлолын хэмжээстэй дүйцэхүйц двухтавр эсвэл С төмөр эдлэлийг ойлгоно. (БНбД 31-09-07-оос)
2.Наамал банзан гол дам нурууны алслал сонгох жишээ хүснэгт
Тайлбар: Дам нурууны өргөн гэдэгт багадаа 38 мм-ээс багагүй зузаантай нэгээс их банзан материалыг багцалж хадсан дам нурууны өргөн гэж ойлгоно. (БНбД 31-09-07-оос)
3.Төмөр бетон угсармал хучилтын хавтан
Тайлбар: Зарим тохиолдолд 7,2 метр хүртэл хучилтын хавтанг захиалагаар үйлдвэрлэж байгаа.
Амины орон сууцны бохир болон цэвэр усны төлөвлөлтийг хийхдээ аль болох гол шугам руу дөхүүлж хийх нь зүйтэй юм. Хэдийгээр даралт өргөх болон эргэлтийн насосууд, бохирын шугамын налууг зөв тооцож хийсэн ч манай нөхцөлд сантехикийн материалыг чанартай, нэг загвар, үйлдвэрийнхийг сонгодоггүйгээс засвар үйлчилгээ ойр ойрхон хийхэд хүргэдэг.
Энэ нь дараах хүндрэлүүдийг үүсгэдэг.
1.Далд шугамуудыг засварлахад ихээхэн хүч, хөрөнгө зарцуулах болдог.
2.Салбар шугамуудыг гол шугамуудаас хэт хол төлөвлөснөөс бохирын шугамын уналтыг тааруулахын тулд дам нурууны өндөр стандарт хэмжээнээс давахад хүрдэг нь хөрөнгө оруулалтыг нэмэгдүүлдэг.
3.Зарим тохиолдолд төмөр бетон дам нурууг тойруулж бохирын шугам явуулахад давхар хоорондын өндөр багадах эсвэл хийцлэлийн шаардлагаар давхрын өндрүүд хэт өндөр төлөвлөгдөх нөхцөл бүрдэнэ.
4.Усан хангамж болон ариутгах татуургын салбар шугамууд гол шугамнаас хол төлөвлөгдсөнөөс зарим тохиолдолд унтлагын өрөө, зочны өрөө, бусад өрөөнүүдийн тааз, шалаар явах нөхцөл үүсдэг ба эдгээр нь дуу чимээний бохирдол үүсгэх бас нэг шалтгаан болох нь бий.
5.Ус алдах нөхцөл үүсэхэд байшингийн ихэнх далд хийцийг гэмтээхэд хүргэнэ.
Уншигчдын бичсэн сэтгэгдэлд barilga.mn хариуцлага хүлээхгүй болно. Манай сайт ХХЗХ-ны журмын дагуу зүй зохисгүй зарим үг, хэллэгийг хязгаарласан тул та сэтгэгдэл бичихдээ бусдын эрх ашгийг хүндэтгэн үзнэ үү.