30 метр квадрат орон сууцны интерьер

30 метр квадрат орон сууцны интерьер

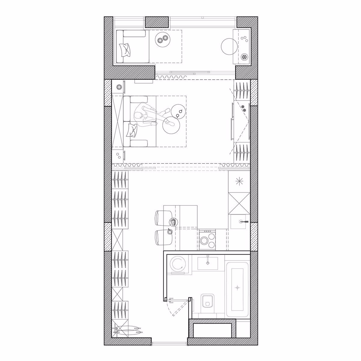
Бидний дараагийн аялал ОХУ-ын Москва хотод байрладаг оро сууцанд явагдана. Энэхүү 30 метр квадрат интерьер дотор хүрэн,  саарал өнгөний зөөлөн тавилгаас үүдэн тайван дулаахан уур амьсгал ургадаг. Шилэн хана нь зочны өрөөний хоёр талыг дайрч, төвд нь буйдан байрлуулсаар зочны өрөөг гал тогооны өрөөнөөс тусгаарлаж буланд нь суудлын буйдан тавьж өгснөөр маш бага зайнд амралтын хэсгийг шийдэж өгсөн байна. 


СЭТГЭГДЭЛ БИЧИХ

АНХААРУУЛГА:
Уншигчдын бичсэн сэтгэгдэлд barilga.mn хариуцлага хүлээхгүй болно. Манай сайт ХХЗХ-ны журмын дагуу зүй зохисгүй зарим үг, хэллэгийг хязгаарласан тул та сэтгэгдэл бичихдээ бусдын эрх ашгийг хүндэтгэн үзнэ үү.

Холбоотой мэдээ