Нэг айлын сууцны төлөвлөлтийн бүтэц ба элементүүд

Нэг айлын сууцны төлөвлөлтийн бүтэц ба элементүүд



Нэг айлын сууцны архитектур орон зайн төлөвлөлтийг хэрхэн шийдэх зөвлөмжийг цувралаар хүргэжбайгаа билээ. Энэ удаа хооллох өрөө болон гал тогоо, ариун цэвэр, туслах өрөөний төлөвлөлт хийх тухай товч ойлголтуудыг танд хүргэж байна.


Гал тогооны өрөө 

Тус өрөө нь өдөр тутмын хоол цай бэлтгэх, өрхийн гишүүд хамтран сууж хооллоход голлон зориулагдана. Эртнээс уламжилж ирсэн монгол ёс, орчин үеийн хэрэгцээ шаардлагад нийцүүлэн гал тогоог хоол цай бэлтгэх хэсэг, ам бүлээрээ хооллох хэсэг гэж хоёр хуваан төлөвлөх нь илүү зохимжтой. Сууцны туслах өрөөнүүдээс өдрийн турш, урт хугацаагаар ашиглагддаг учир норм дүрмийн дагуу байгалийн гэрлийг их шаардана. Судалгаанаас үзэхэд түүний технологийн үндсэн үйл явц нь хоол унд бэлтгэх боловч хооллох, радио сонсох, телевизийн нэвтрүүлэг үзэх зэрэг соёлын идэвхгүй арга хэмжээ явагддаг байна. Иймд хооллох хэсгийг гал тогоо, эсвэл нийтийн өрөөтэй нэгтгэх болсон.





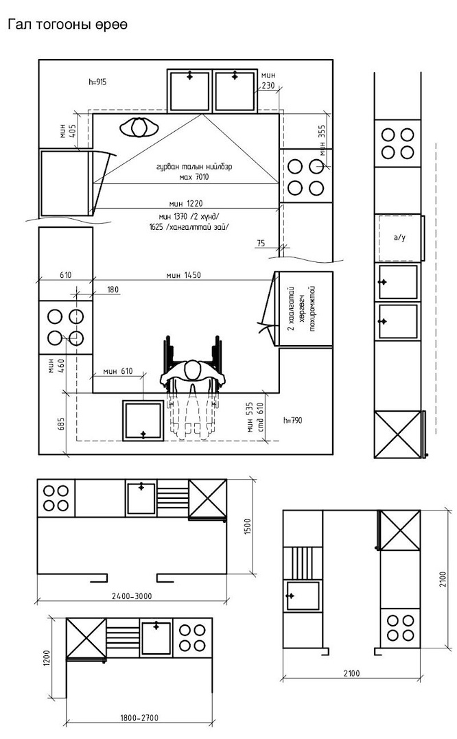
Зураг 1. Гал тогооны өрөөний орон зайнхэмжээс


Гал тогооны өрөө нь цэвэр ус, цахилгаан хангамж болон бохир ус зайлуулах шугам сүлжээ, агаар сэлгэх тоног төхөөрөмжөөр тоноглогдсон байх шаардлагатай. 

Гал тогоо, ариун цэврийн өрөөний шалнаас тааз хүртэлх дотор цэвэр өндөр 2,25м-ээс багагүй байна. 

Уур амьсгалын IA, IIA, IIБ бүс дэх сууцны болон гал тогооны өрөөний шалны түвшнээс тааз хүртэлх цэвэр өндрийн доод хэмжээ 2,7м-ээс доошгүй, уур амьсгалын бусад бүсэд энэ өндөр 2,5м-ээс багагүй байх ёстой. Захиалагчийн хүсэлтээр давхрын цэвэр өндрийг багасгаж, ихэсгэх өөрчлөлт хийж болно.


 




Зураг 2. Дараах төлөвлөлтөд материал, орчныхарагдах байдал, орон зайн ашиглалт, тав тух зэргийг бодолцон тусгасан нь гэрбүлээрээ цуглах, алжаал тайлах орчинг бий болгожээ. 



Гал тогооны өрөөнд хоол хүнс боловсруулахаас эхлээд хүнсний бүтээгдэхүүн хадгалахад зориулсан тавилга хэрэгслийг урьдаас төлөвлөх бөгөөд суурин газраас зайдуу үед хүнсний бүтээгдэхүүн хадгалах боломж бүхий туслах өрөөг нэмж төлөвлөж болно. 

Хоол хүнс бэлтгэх технологитой (хүнсний ногоо цэвэрлэх, арилгах, махан бүтээгдэхүүн боловсруулах, сав суулга угааж цэвэрлэх зэрэг) уялдуулан тавилга хэрэгсэл, тоног төхөөрөмжийг байрлуулна. 

Гал тогооны өрөөг төлөвлөхдөө сав угаах тосгуур, хүнс хадгалах хөргүүр, цахилгаан зуух зэрэг гэр ахуйн техник хэрэгслийг давхрын байгуулалтын зураглалд зайлшгүй тусгана. 

Гал тогооны тавилга тоног төхөөрөмж байрлуулах өрөөний орон зайн цэвэр урт 2,4м-ээс багагүй, тавилга тоног төхөөрөмжийг нэг эгнээгээр тавих тохиолдолд цэвэр өргөн нь 1,7м-ээс багагүй, хоёр эгнээгээр тавих нөхцөлд тавилга хооронд хүн зорчих цэвэр зай 0,9м-ээс багагүй байна. 

Хоол бэлтгэх шүүгээ, ширээг ханын дагуу 85-95см өндөртэй хийж байрлуулах нь тохиромжтой. Хүнсний нөөц, сав суулга, бусад зүйлийг хадгалах өлгүүр шүүгээг шалнаас 1,3-1,5м өндөрт байрлуулна. 



 


Зураг 3. Гал тогооны өрөөний эргономик


Гал тогооны өрөөнд 2-4, 4-6 хүн суух хоолны ширээг сандлын хамтаар багтаан байрлуулах хэрэгтэй. 

Өнгө сонголтын хувьд өнгөлөг хэрнээ зөөлөн дулаан өнгийг сонгох нь чухал. Хоолны дуршлыг багасгах тод ногоон, нил ягаан, саарал зэрэг өнгүүдийг ашиглах нь тийм ч зөв сонголт биш юм. Харин улаан, шар, улбар шар, зэрэг өнгүүд нь хоолны дуршлыг нэмэгдүүлдэг байна.





Зураг 4. Интерьерийн шийдэл. (Шилэн ханатөлөвлөсөн нь байгалийн гэрлээр хангагдахаас гадна орчинтой харьцах боломжийгбий болгоно. )



Манай орны эрс тэс уур амьсгалтай нөхцөлд гадна хананд томоохон тавилга болон сантехникийн тоног төхөөрөмж байрлуулах нь ханын чийгшлийг нэмэгдүүлэх, дотор агаарын температуртай харьцах боломжийг бууруулдаг тул цанталт, дулаан алдагдал бий болгох сөрөг талтайг анхаарна уу.

Тав тухтай гал тогоо, хооллох өрөөг төлөвлөх нь гэр бүлийн харилцааг сайжруулах чухал нөлөөтэй. Гал тогооны шаланд өндөр намын ялгаатай гишгүүр байх нь их хэмжээгээр хоол хүнсээ зөөж авчирахад хүндрэлтэйгээс гадна унаж бэртэх аюултай. Мөн цахилгаан хэрэгслүүдийг нэг дор тавих, угаалтуурын зэргэлдээ цахилгаан тоног төхөөрөмж тавьж болохгүй ба хөргөгч ба угаалтуур, угаалтуур ба цахилгаан зуухны хооронд заавал хоол бэлтгэх хэсэг байх хэрэгтэй.

Гал зуухны өрөө гэрийн эздийн өрөөтэй ойрхон байх хэрэгтэй. Гал зуухны өрөөний хэмжээ төдий л том байдаггүй учир хоолны үнэр гэрт тархах муу тал байдаг.


Гал тогооны ажлыг дэс дарааллын дагуу хийхийн тулд тоног төхөөрөмжийг: Хөргөгч → хоол бэлтгэх хэсэг → угаалтуур → хоол хийх хэсэг → цахилгаан зуух → хоол таваглах хэсэг → хоолны ширээ гэсэн дарааллаар байрлуулах нь тохиромжтой. 



 


Зураг 5. Гал тогооны өрөөний тавилгынбайрлал (ABC буюу ажлын гурвалжинд хүний хөдөлгөөнд саад болох сандал ширээзэрэг тавилга төлөвлөхгүй.)



Хооллох өрөө 

Тус өрөө нь гал тогооны өрөөтэй хамт байдаг учир ариун цэвэр эрүүл ахуйн хувьд өндөр шаардлага тавигддаг. Гэсэн хэдий ч орчин үед зарим гэр бүл зөвхөн хооллох зориулалтаар биш, гэр бүлээрээ цагийг өнгөрөөх, бага хэмжээний хүлээн авалт зэрэг олон талт хэлбэрээр ашиглах болсон. Хооллох өрөөг зочны өрөөтэй ойролцоо, байгалийн гэрэлтүүлэг сайтай, цэцэрлэг ногоон байгууламж болон зэргэлдээх орчинтойгоо харьцах боломжтойгоор байрлуулах нь тохиромжтой. Хөлийн өрөөтэй огтлолцох хөдөлгөөний таагүй нөлөөлөл, харагдац зэргийг сайтар бодолцох хэрэгтэй.



 

Зураг 6. Хооллох өрөөний эргономик



Гэрэлтүүлгийн хувьд хооллох ширээболон хоол бэлтгэх хэсгүүдэд тус бүрд нь тохирсон гэрэлтүүлэг төлөвлөдөг.Зохиомол гэрэлтүүлгийг байгалийн гэрэлтүүлгийн дагуу чиглэлд, өрөөнийзориулалтад нь нийцүүлж, төрөл, хүчин чадал, гэрэлтүүлгийн өндөр зэргийгтөлөвлөнө.


Ариунцэврийн өрөө


Орчинүед энэхүү өрөө нь хязгаарлагдмал хэрэгцээний бус ядаргаа тайлан, эрч хүчээсэлбэх өрөө болон хувирч байна. Сууцныариун цэврийн өрөөг гол төлөв усанд орох болон бие засах гэсэн тусдаа,зэргэлдээ хоёр өрөө, мөн суултуур, угаалтууртай нэг өрөө байхаар төлөвлөдөг.


Тусдаа гаргасан ариун цэврийн өрөөнэлээд дэлгэрсэн. Нэг дор байрлуулсан тоноглолтой ариун цэврийн өрөөг нэг өрөөтэйсууц, эсвэл зочид буудалд байрлуулна.


Унтлагын өрөө болгонд ариун цэврийнөрөө төлөвлөх нь эдийн засгийн хувьд хүндрэлтэй болдог учир эхнэр нөхрийн,хүүхдийн, зочны болон нийтийн ашиглалтай өрөөнд төлөвлөх нь зүйтэй.


Ванн, 2 угаагуур, суултуур, биде(угаалганд зориулсан суултуур), саун, шүршүүр, алчуурын өлгүүр, алчуур хатаагч,толь, тавиурууд, 00 цаасны тавиур зэргийг байршуулна. Өрх гэр бүлийн хэрэгцээндбидег суурилуулж өгөх нь олон төрлийн өвчнөөс хамгаалах, эрүүл аж төрөхөд чухалнөлөөтэй.


            


Зураг 7. Биде (Хуучин тус бүрд нь төлөвлөдөгбайсан бол одоо үед хамтад нь шийдэх нь эдийн засаг, орон зайд хэмнэлттэйболсон)



Манай орон шиг эрс тэс уур амьсгалтай нөхцөлд гадна хананд ариун цэврийн тоног төхөөрөмж байрлуулах нь тохиромжгүй бөгөөд дулаан алдах, цантах, хөгцрөлт, мөөгөнцөр үүсэх шалтгаан болдог ба гарцаагүй төлөвлөх тохиолдолд өндөр төвшний ус чийг тусгаарлах материал, дулаалга нэмэлтээр тусгах шаардлага гардаг. Энэ нь эдийн засгийн хувьд илүү зардлыг бий болгоно.

Иймд техникийн болон ариун цэврийн өрөө, туслах өрөө тасалгаануудыг нэгээс илүүгүй гадна ханатай орон зайд буюу дулаан алдалт багатай дотоод орон зайд төлөвлөх нь зөв шийдэл болдог.

Ариун цэврийн өрөөнд усанд орсны дараа түр амрах, суух боломж бүхий орон зайг төлөвлөж өгвөл илүү тав тухтай болно. Суултуур болон угаалтуурыг тус тусад нь өөр өрөөнд салган төлөвлөж болно. Ингэснээр эмэгтэйчүүдийн гоо сайхны хэсгийг байрлуулах боломжтой болно. Ариун цэврийн өрөөний хаалгыг хамгийн багадаа 0,81м ( хуучин 0,71м байдаг байсан бол сүүлд угаалгын машин байрлуулахтай холбоотой өргөн хаалга төлөвлөх болсон) байхаар төлөвлөх ба онгойлтыг дотогш чиглэсэн байхаар төлөвлөх нь илүү тохиромжтой (Яаралтай үед авран сэргийлэх бол хаалгыг дотогш эвдэхэд илүү хялбар ба хаалганы сараалж, гэгээвч зэрэг нь шаардлагатай үед дотор орон зайг хянахад мөн хэрэглэгдэнэ).





Зураг 8. Угаалгын өрөөний шийдэл



Гэрэлтүүлгийг ус, чийгнээс хамгаалсан гэрэлтүүлэг төлөвлөх ба толины ойролцоо жижиг гэрлийг нэмэлтээр суурилуулж өгнө. Цонхгүй ариун цэврийн өрөөнд агаарын солилцоог сайжруулах агааржуулагчийг таазанд суурилуулах ба хаалганд сараалж хэлбэрийн решётка суурилуулан шийдэж болно. Угаалгын өрөөний шалыг ус алдах тоног төхөөрөмжийн гэмтлээс үүсэх ус алдах аюулыг бууруулах зорилгоор бусад өрөөний шалнаас тодорхой төвшний доор байхаар төлөвлөнө (2-5см). Зарим тохиолдолд ус цуглуулах сувагтайгаар шийднэ. Шал нь хальтрах унах нөхцлөөс сэргийлсэн, цэвэрлэхэд хялбар ус нэвчихгүй тусгай төрлийн материалаар хийнэ. Хананд 1,8м-ээс багагүй төвшинд чулуу болон плитан (хавтанцрын) өнгөлгөө хийж өгнө.




Зураг 9. Ариун цэврийн өрөөний төрлүүд



Угаалгын өрөө: Угаалгын машин, сэгсрэгч, индүүний ширээ, хувцас хатаагч зэргийг байрлуулах орон зайтай байна. Хаалганы хамгийн бага өргөн 0,75м-ээс багагүй байх шаардлагатай. Хамгийн том угаалгын машин багтахуйц байх хэрэгтэй. Өрөөний хэмжээ 5м2 түүнээс дээш байх нь тохиромжтой. Гэрэлтүүлэг сайтай, цэвэрхэн орчин байх хэрэгтэй. Дээр дурьдсан тоног төхөөрөмжийг саадгүй ажиллуулахын тулд энэ өрөөнд 2 хаалга төлөвлөх боломжтой.


Туслах өрөө тасалгаа 

Айлын сууцны туслах өрөө тасалгааны өргөний доод хэмжээ, тухайлбал: үүдний өрөө 1,4м, унтлагын болон нийтийн өрөө рүү орох хонгил 1м, гал тогоонд орох хонгил 1м-ээс багагүй, ариун цэврийн өрөөнд орох хонгилд 0,9м байна. Сууцны доторх хонгил үүдний өрөөний шалнаас тааз хүртэлх цэвэр өндөр 2,1м-ээс багагүй байна. 

Сууцны доторх ханын шүүгээний цэвэр өндөр 2м-ээс, ханын гадаргуунаас шүүгээний хаалга хүртэлх цэвэр зай 0,5м-ээс багагүй байна. Хөгжлийн бэрхшээлтэй хүн амьдрах орон сууцны барилгын туслах өрөөний өргөний доод хэмжээ гал тогооны өрөөнд 2,2м, үүдний өрөөнд 1,6м, сууцны доторх хонгилд 1,15м байна. Ариун цэврийн өрөө, усанд орох онгоц, шүршүүрийн нэгдсэн өрөөний нийт талбайн доод хэмжээ 2,2х2,2м байх ёстой. Гэхдээ энэ өрөөг захиалагч зөвшөөрвөл 1,6х2,2м хүртэл багасган төлөвлөж болно. 

Д.Өлзийсүрэн/ШУТИС-ийн БАС-н архитектурын салбарын ахлах багш/


Холбоотой мэдээ